
Rutz Immobilien GmbH
Herr Jan Lippert
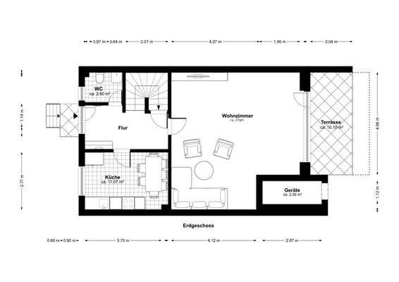
004 ···
Nr. anzeigenPreise & Kosten
Provision für Käufer
3,57% (inkl. MwSt.) vom beurkundeten Kaufpreis (Käuferprovision)
Lage
Der Stadtteil Delmenhorst-Brendel im nördlichen Abschnitt der Stadt, ist eine klassische Wohnsiedlung mit vielen Einfamilienhäusern, einigen Reihen- und wenigen Mehrfamilienhäusern. Die wohnortnahe Versorgung ist in Brendel/Adelheide an der Adelheider Straße sowie dem Blücher- und Brendelweg möglich. Bäcker und Tankstellen...
Das Haus
Kategorie
Reihenmittelhaus
Baujahr
1980
Bezug
nach Vereinbarung
Energie & Heizung
Warum sehe ich diese Anzeige? – Du siehst diese Anzeige basierend auf Ihrer Navigation auf unserer Website und den Suchkriterien, die du verwendet hast.
Energieausweistyp
Bedarfsausweis
Gebäudetyp
Wohngebäude
Baujahr laut Energieausweis
1980
Wesentliche Energieträger
GAS
Gültigkeit
bis 31.08.2035
Effizienzklasse
F
Endenergiebedarf
168,60 kWh/(m²·a)
Weitere Energiedaten
Energieträger
Gas
Details
Objektbeschreibung
Dieses im Jahr 1980 erbaute Reihenmittelhaus präsentiert sich in einem gepflegten Zustand und bietet ca. 100m² Wohnfläche sowie weitere Nutzfläche im ausgebauten Dachgeschoss. Neben einem liebevoll angelegten Garten gehören auch eine überdachte Terrasse, ein praktisches Gartenhaus sowie ein Keller mit zwei Räumen und eine...
Ausstattung
+ Drei-adrige Elektrik mit Schaltsicherungen
+ Zweifach verglaste Kunsstofffenster mit Außenrolläden
+ Gasheizung mit WW-Speicher (1994)
+ Vollbad mit Fenster und Fußbodenheizung (2000)
+ Gäste-WC mit Fenster
+ funktionale Einbauküche
+ Teilkeller mit Heizungsraum und Waschkeller
+ ausgebautes...
Preisinformation
1 Garagenstellplatz
Weitere Informationen
Sonstiges
Wir weisen darauf hin, dass die von uns weitergegebenen Objektinformationen, Unterlagen, Pläne etc. vom Auftraggeber stammen. Eine Haftung für die Richtigkeit oder Vollständigkeit der Angaben übernehmen wir nicht. Es obliegt daher unseren Kunden, die darin enthaltenen Objektinformationen und Angaben auf ihre...
Anbieter der Immobilie
Rutz Immobilien GmbH
Schildstraße 8, 27753 Delmenhorst
Online-ID: 2lz9u5q
Referenznummer: Ref.-Nr. 690
Finde Angebote wie dieses
Hier geht es zu unserem Impressum, den Allgemeinen Geschäftsbedingungen, den Hinweisen zum Datenschutz und nutzungsbasierter Online-Werbung.