
FOCUS Immobilienmakler GmbH
Herr Mario Schubert
004 ···
Nr. anzeigenPreise & Kosten
Kaution
3 Kaltmieten
Warum sehe ich diese Anzeige? – Du siehst diese Anzeige basierend auf Ihrer Navigation auf unserer Website und den Suchkriterien, die du verwendet hast.
Lage
Der in Leipzig-Altwest liegende Stadtteil Neulindenau besticht durch seine ruhige Lage und ist eine Mischung aus Wohngebiet und alten Industrieanlagen. Das Lindenau Forum liegt verkehrsgünstig an der Lützner-/Saalfelder Straße und ist somit optimal an den ÖPNV angeschlossen (Straßenbahn/Bus/S-Bahn). Das Objekt beherbergt...
Die Wohnung
Wohnungslage
4. Geschoss (Dachgeschoss)
Bezug
sofofrt
Wohnanlage
Energie & Heizung
Warum sehe ich diese Anzeige? – Du siehst diese Anzeige basierend auf Ihrer Navigation auf unserer Website und den Suchkriterien, die du verwendet hast.
Energieausweistyp
Verbrauchsausweis
Gebäudetyp
Wohngebäude
Wesentliche Energieträger
FERN
Gültigkeit
bis 29.05.2034
Effizienzklasse
B
Endenergieverbrauch
51,30 kWh/(m²·a)
Weitere Energiedaten
Energieträger
Gas
Heizungsart
Zentralheizung
Details
Objektbeschreibung
Das Wohn- und Geschäftshaus befindet sich in Leipzig- Neulindenau.
Ausstattung
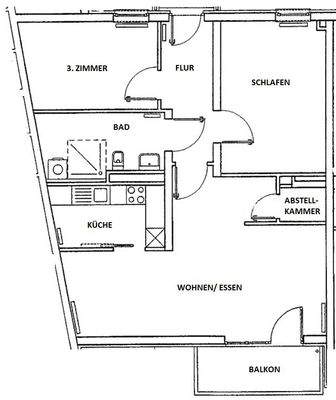
Die geräumige 3-Zimmer-Wohnung befindet sich im 4.Obergeschoss (=Dachgeschoss) in zweiter, ruhiger Reihe des Objektes und ist bequem über den Lift zu erreichen.
Die Wohnung verfügt über ein großzügiges und sehr helles Wohnzimmer, einen Südbalkon und eine z.T. offene Küche.
Das geräumige Bad wird mit einer...
Preisinformation
1 Tiefgaragenstellplatz, Miete: 45,00 EUR
Weitere Informationen
Sonstiges
Für ergänzende Informationen zum Objekt und ein persönliches Beratungsgespräch stehen wir Ihnen gern telefonisch zur Verfügung.
Sind Sie an weiteren Angeboten interessiert?
Besuchen Sie uns doch auf unserer Homepage www.focus-makler.de.
Wir freuen uns auf Sie.
Stichworte
Tiefgarage...
Anbieter der Immobilie
FOCUS Immobilienmakler GmbH
Rabensteinplatz 1, 04103 Leipzig
Online-ID: 2lzat5f
Referenznummer: 13255
Finde Angebote wie dieses
Hier geht es zu unserem Impressum, den Allgemeinen Geschäftsbedingungen, den Hinweisen zum Datenschutz und nutzungsbasierter Online-Werbung.