
Konzack Immobilien
Herr Martin Konzack
041 ···
Nr. anzeigenPreise & Kosten
Provision für Käufer
Die vom Käufer und Verkäufer zu zahlende Provision beträgt jeweils 2,5 % des Kaufpreises einschl. der gesetzlich gültigen Mehrwertsteuer. Wir weisen auf unsere Tätigkeit für beide Vertragspartner hin
Lage
Hohnstorf an der Elbe ist eine kleine Gemeinde in Niedersachsen am westlichen Ufer der Elbe, gegenüber von Lauenburg/Elbe. Der familienfreundliche Ort mit seinen etwa 2.700 Einwohnern gehört zur Samtgemeinde Scharnebeck im Landkreis Lüneburg und erfreut sich dank der guten Verkehrsanbindung nach Lüneburg und Hamburg...
Das Haus
Kategorie
Einfamilienhaus
Baujahr
1964
Derzeitige Nutzung
frei
Energie & Heizung
Warum sehe ich diese Anzeige? – Du siehst diese Anzeige basierend auf Ihrer Navigation auf unserer Website und den Suchkriterien, die du verwendet hast.
Energieausweistyp
Bedarfsausweis
Gebäudetyp
Wohngebäude
Wesentliche Energieträger
Öl
Gültigkeit
18.02.2025 bis 17.02.2035
Effizienzklasse
F
Endenergiebedarf
191,34 kWh/(m²·a)
Weitere Energiedaten
Haustyp
Massivhaus
Energieträger
Öl
Heizungsart
Zentralheizung
Details
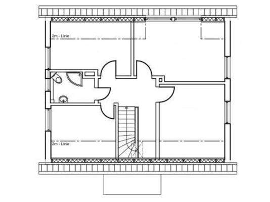
Objektbeschreibung
Das Einfamilienhaus wurde im Jahr 1964 in massiver Bauweise auf einem ca. 1.585 m² großen Erbpachtgrundstück errichtet (Der bestehende Erbbaurechtsvertrag kann bereits auf neue 99 Jahre Laufzeit abgeschlossen werden - der monatliche Erbbauzins beträgt nur 99,- EUR).
Das Haus bietet insgesamt 6 Zimmer und rund 170?m² Wohn-...
Ausstattung
Die Bäder sind hell gefliest, alle weiteren Räume wurden mit einem modernen Designboden in grauer Eiche ausgelegt - wohnlich und pflegeleicht zugleich.
Die doppelt verglasten Kunststofffenster sind größtenteils mit Rollläden ausgestattet.
Beheizt wird das Haus aktuell durch eine Öl-Zentralheizung aus dem Jahr 1984. Ein...
Preisinformation
2 Garagenstellplätze
Weitere Informationen
Sonstiges
Besichtigungen nach Absprache
Anbieter der Immobilie
Konzack Immobilien
Ritterstraße 51, 21335 Lüneburg
Online-ID: 2lzav5q
Referenznummer: HK 25-41 (1/44)
Finde Angebote wie dieses
Hier geht es zu unserem Impressum, den Allgemeinen Geschäftsbedingungen, den Hinweisen zum Datenschutz und nutzungsbasierter Online-Werbung.