

IFC Immobiliengesellschaft mbH
Herr Paul-Ludwig Blümel
034 ···
Nr. anzeigenPreise & Kosten
Provision für Käufer
Die Provision beträgt 3,5 % vom Kaufpreis (zzgl. der geltenden MwSt.).
Das Haus
Geschosse
3 Geschosse
Baujahr
1920
Energie & Heizung
Warum sehe ich diese Anzeige? – Du siehst diese Anzeige basierend auf Ihrer Navigation auf unserer Website und den Suchkriterien, die du verwendet hast.
Weitere Energiedaten
Energieträger
Gas
Details
Objektbeschreibung
Diese zum Verkauf stehende Immobilie befindet sich in Roßlau, einem Teil der Doppelstadt Dessau-Roßlau in Sachsen-Anhalt. Zentral gelegen bietet Roßlau eine hervorragende Anbindung an Infrastruktur, Einkaufsmöglichkeiten, Schulen und Freizeitangebote. Die Nähe zu Dessau-Roßlau und umliegenden Großstädten, wie Leipzig und...
Weitere Informationen
Objektangaben
Raumaufteilung:
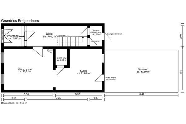
Erdgeschoss:
Küche mit Essbereich und Zugang zur Terrasse, offener Wohnbereich mit Kamin, Gäste-WC, Diele mit Zugang zum Grundstück, Windfang
Obergeschoss:
2 Zimmer, Bad, Diele, Hauswirtschaftsraum / Abstellraum
Dachgeschoss:
großes ausgebautes Zimmer mit Bad und...
Dokumente
Anbieter der Immobilie

Online-ID: 2lzd95q
Referenznummer: 2015
Finde Angebote wie dieses
Hier geht es zu unserem Impressum, den Allgemeinen Geschäftsbedingungen, den Hinweisen zum Datenschutz und nutzungsbasierter Online-Werbung.