

Immobilien Klemme - eine Marke der Vpro Immobilien GmbH
Herr Dennis Halstenberg
+49 ···
Nr. anzeigenPreise & Kosten
Provision für Käufer
3,57 % inkl. MwSt.
Zahlbar und fällig bei Abschluss eines notariellen Kaufvertrags. Mit dem Eigentümer der Immobilie ist ein Maklervertrag mit gleicher Provisionshöhe geschlossen worden.
Lage
Das Objekt liegt in einer beliebten Innenstadtlage von Bad Salzuflen an der Salze. Im Umfeld befinden sich überwiegend Wohn- und Geschäftshäuser mit Ladenlokalen. Einkaufsmöglichkeiten des täglichen Bedarfs sind in direkter Nachbarschaft. Zudem ist eine sehr gute verkehrstechnische Anbindung gegeben. Die nächste...
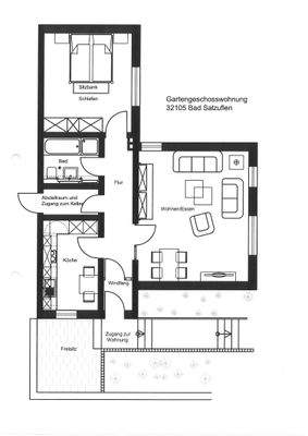
Die Wohnung
Kategorie
Terrassenwohnung
Bezug
Nach Absprache
Wohnanlage
Energie & Heizung
Warum sehe ich diese Anzeige? – Du siehst diese Anzeige basierend auf Ihrer Navigation auf unserer Website und den Suchkriterien, die du verwendet hast.
Energieausweistyp
Verbrauchsausweis
Gebäudetyp
Wohngebäude
Baujahr laut Energieausweis
1986
Wesentliche Energieträger
Öl
Effizienzklasse
D
Endenergieverbrauch
117,50 kWh/(m²·a)
Weitere Energiedaten
Energieträger
Öl
Heizungsart
Zentralheizung
Details
Objektbeschreibung
Die repräsentative und schöne Gartengeschosswohnung befindet sich in einem im Jahre 1986 erbauten 7-Parteienhaus in bevorzugter Lage von Bad Salzuflen-Innenstadt. Die zentrale Lage direkt an der Salze macht diese Wohnung zu etwas ganz Besonderem.
Auf ca. 71 m² Wohnfläche bietet sich ein überaus gelungenes Wohnkonzept...
Ausstattung
- Eigener Eingang
- Terrasse vor der Tür
- Direkt an der Salze
- Glastüren
- neuer Vinyl Bodenbelag
- komplette Renovierung 2018
. saniertes Badezimmer
- Abstellraum
- Kellerraum
- Rollladen
Weitere Informationen
Sonstiges
Immobilien Klemme
eine Marke der Vpro Immobilien GmbH
Osterstraße 31
32105 Bad Salzuflen
Tel.: +49 (0) 5222 - 980 94 82
E-Mail: info[at]immobilien-klemme.de
Web: www.immobilien-klemme.de
Büro-Öffnungszeiten:
Mo - Do: 09:00 - 18:00 Uhr
Fr: 09:00 - 13:00...
Anbieter der Immobilie
Immobilien Klemme - eine Marke der Vpro Immobilien GmbH
Osterstr. 31, 32105 Bad Salzuflen

Online-ID: 2lzg65b
Referenznummer: 7374#Ohtcq
Finde Angebote wie dieses
Hier geht es zu unserem Impressum, den Allgemeinen Geschäftsbedingungen, den Hinweisen zum Datenschutz und nutzungsbasierter Online-Werbung.