

Immoraum GmbH
Herr Sven Gruber
+49 ···
Nr. anzeigenPreise & Kosten
Kaution
3 Bruttomonatsmieten
Provision für Mieter
provisionsfrei
Warum sehe ich diese Anzeige? – Du siehst diese Anzeige basierend auf Ihrer Navigation auf unserer Website und den Suchkriterien, die du verwendet hast.
Lage
Das Büro- und Geschäftshaus liegt in zentraler Lage im Stuttgarter Westen. Nur wenige Gehminuten entfernt befindet sich die U-Bahnhaltestelle Rosenberg-/Seidenstraße. Von hier erreicht man den Hauptverkehrsknotenpunkt Stuttgarts, den Hauptbahnhof mit Anschluss an alle S-/ und U-Bahn-Linien der Stadt, bereits in kürzester Zeit...
Büro-/Praxisfläche
Kategorie
Bürofläche
Baujahr
1954
Bezug
10/2025
Geschoss
1. Geschoss
Energie & Heizung
Warum sehe ich diese Anzeige? – Du siehst diese Anzeige basierend auf Ihrer Navigation auf unserer Website und den Suchkriterien, die du verwendet hast.
Wärme
Energieausweistyp
Verbrauchsausweis
Gebäudetyp
Nicht-Wohngebäude
Baujahr laut Energieausweis
1954
Gültigkeit
bis 29.04.2024
Endenergieverbrauch (Wärme)
114,00 kWh/(m²·a)
Details
Objektbeschreibung
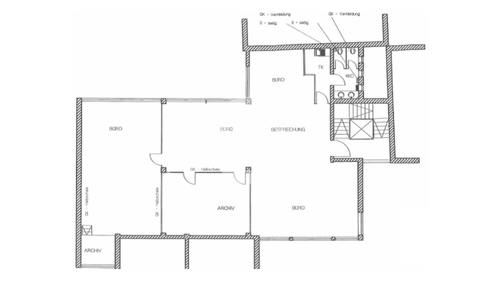
Das Büro- und Geschäftshaus wurde im Jahre 1950 erbaut und befindet sich in einem gepflegten Zustand. Die vakanten Büroflächen im Gebäude verteilen sich auf vier Etagen und sind insgesamt ca. 1.029 m² groß. Die Flächen können ab ca. 234 m² geteilt werden, aber ebenso auch komplett angemietet werden.
Im Gebäude befindet...
Ausstattung
- teilbar ab 234 m²
- Klimaanlage
- Parkettboden
- außenliegender Sonnenschutz
- Parkmöglichkeiten in der Nähe
- sehr gute ÖPNV-Anbindung
Parkettboden, Einbauküche, Brüstungskanäle, Sonnenschutz außen, Fernwärme, Bezug in 1-3 Monaten, Außenstellplätze, einfache Ausstattung, EDV-Verkabelung
Weitere Informationen
Sonstiges
Noch nicht das Richtige? Wir führen weitere Objekte im Großraum Stuttgart. Sprechen Sie mit unseren Beratern. Gemeinsam finden wir Ihr Wunschobjekt! Wir freuen uns auf Ihre Kontaktaufnahme!
Nach den §§ 16, 16 a EnEV ist der Eigentümer, Verkäufer, Vermieter, Verpächter und Leasinggeber bei der Vermarktung...
Anbieter der Immobilie
Immoraum GmbH
Uhlandstraße 14, 70182 Stuttgart

Online-ID: 2lzhd5c
Referenznummer: IR5636/E2
Finde Angebote wie dieses
Hier geht es zu unserem Impressum, den Allgemeinen Geschäftsbedingungen, den Hinweisen zum Datenschutz und nutzungsbasierter Online-Werbung.