
Decus Immobilien GmbH
Frau Jasmin Heida
+43 ···
Nr. anzeigenPreise & Kosten
inkl. Betriebskosten
Kaution
3 Bruttomonatsmieten
Provision für Mieter
Gemäß Erstauftraggeberprinzip bezahlt der Abgeber die Provision.
Warum sehe ich diese Anzeige? – Du siehst diese Anzeige basierend auf Ihrer Navigation auf unserer Website und den Suchkriterien, die du verwendet hast.
Lage
Das Projekt befindet sich im Herzen von Brunn am Gebirge, einer charmanten Marktgemeinde im Bezirk Mödling. Diese zentrale Lage bietet eine hervorragende Infrastruktur und zahlreiche Annehmlichkeiten in unmittelbarer Nähe.
Einkaufsmöglichkeiten sind in wenigen Gehminuten erreichbar (am nächsten: Billa). Das Ärztezentrum...
Die Wohnung
Bezug
Ab sofort
Wohnanlage
Energie & Heizung
Warum sehe ich diese Anzeige? – Du siehst diese Anzeige basierend auf Ihrer Navigation auf unserer Website und den Suchkriterien, die du verwendet hast.
Weitere Energiedaten
Energieträger
Fernwärme
Heizungsart
Fußbodenheizung, Zentralheizung
Details
Objektbeschreibung
Mehr Lebensqualität im Alter - Wohnen mit Wohlfühlfaktor!
Seniorenwohnen in zentraler Lage in Brunn am Gebirge. In der Leopold-Gattringer-Straße befindet sich eine barrierefreie Wohnhausanlage mit 27 Wohnungen im Bestand sowie 17 weitere Wohnungen in der Wiener Straße, welches mit Q3 2025 fertiggestellt...
Preisinformation
Nettokaltmiete: 775,55 EUR
Weitere Informationen
Stichworte
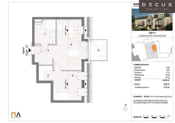
Tiefgarage vorhanden, Fahrradraum, Anzahl der Badezimmer: 1, Anzahl der separaten WCs: 1, Anzahl Balkone: 1, Balkon-Terrassen-Fläche: 5,00 m², Kellerfläche: 5,70 m², Bundesland: Niederösterreich
Anbieter der Immobilie
Decus Immobilien GmbH
Kärtner Straße 39/Annagasse 1, 1010 WIEN
Online-ID: 2lzq55f
Referenznummer: OBGC202504041143251606cc0867635
Finde Angebote wie dieses
Hier geht es zu unserem Impressum, den Allgemeinen Geschäftsbedingungen, den Hinweisen zum Datenschutz und nutzungsbasierter Online-Werbung.