

Halle/Industriefläche zur Miete4,80 €/m²530 m² Lagerfläche
4,80 €
/m²
530 m² Lagerfläche
GEWERBEOBJEKT ZUR MIETE IN STARK FREQUENTIERTER LAGE
Merkmale
- Bezug: sofort
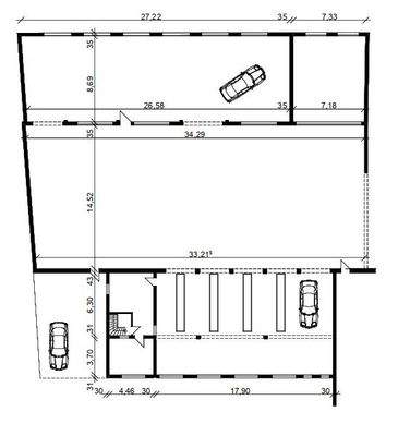
Grundrisse
Grundrisse
1 / 1
Realisiere Dein Projekt
Bausubstanz und Energie
Heizwärmebedarf (HWB)
E
Gesamtenergieeffizienz (fGEE)
- HeizungsartZentralheizung
Mietkosten
Gesamtmiete
3.127 €
Nettokaltmiete
4,80 €/m²
2.120 €
Betriebskosten
530 €
Umsatzsteuer
477 €
Provision für Mieter
3 BMM zzgl. Ust
Kaution
keine Angabe
Weitere Preisinformationen
Nettokaltmiete: 2.120,00 EUR
Lage

Haratzmüllerstraße 76, Steyr (4400)
Weitere Informationen
Weitere Services
Lust auf eine Besichtigung?
Eine Frage zur Immobilie?
Über den Anbieter
Online-ID: 23AKX34KHQU8
Referenznummer: SÜSS REAL-2023-904

SÜSS REAL Immobilien
Wie zufrieden bist du mit dieser Seite (nicht mit der Immobilie selbst)?

