
VON POLL IMMOBILIEN Wuppertal - Constantin Pauly
Frau Andrea Borgini
004 ···
Nr. anzeigenPreise & Kosten
Provision für Käufer
Käuferprovision beträgt 3,57 % (inkl. MwSt.) des beurkundeten Kaufpreises
Lage
Das Mehrfamilienhaus befindet sich am Rande des Briller Viertels in Wuppertal Elberfeld, dem größten zusammenhängenden Villengürtel Deutschlands. Von hier aus sind die Einrichtungen des täglichen Bedarfs in 5 bis 10 Minuten und teilweise fußläufig erreichbar. Die Autobahnauffahrt Katernberg erreichen Sie innerhalb von 5...
Die Wohnung
Wohnungslage
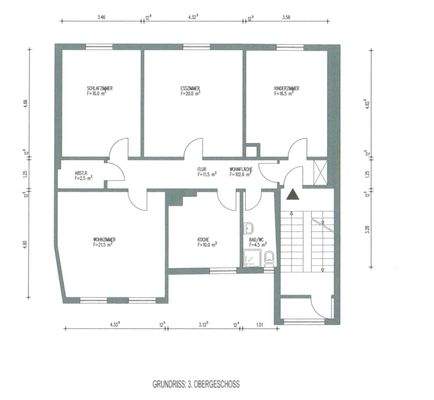
3. Geschoss
Wohnanlage
Energie & Heizung
Warum sehe ich diese Anzeige? – Du siehst diese Anzeige basierend auf Ihrer Navigation auf unserer Website und den Suchkriterien, die du verwendet hast.
Energieausweistyp
Bedarfsausweis
Gebäudetyp
Wohngebäude
Baujahr laut Energieausweis
1901
Wesentliche Energieträger
GAS
Gültigkeit
bis 24.09.2035
Effizienzklasse
H
Endenergiebedarf
282,58 kWh/(m²·a)
Weitere Energiedaten
Energieträger
Gas
Heizungsart
Etagenheizung
Details
Objektbeschreibung
Diese 4-Zimmer-Eigentumswohnung befindet sich im dritten Obergeschoss eines repräsentativen und sehr gepflegten Mehrfamilienhauses, das im Jahr 1901 errichtet wurde. Das Gebäude präsentiert sich dank kontinuierlicher Instandhaltung in einem ausgezeichneten Zustand und verbindet historischen Charme mit modernem...
Ausstattung
Etagenheizung:
Gastherme aus 2005
Übersicht Modernisierungen des Wohnhauses seit 2009:
2024 - Fassade verputzt und neuer Anstrich
2024 - Pflasterung vor dem Haus erneuert
2011- Dacheindeckung, Fallrohre, Dachrinnen erneuert
Weitere Informationen
Sonstiges
Es liegt ein Energiebedarfsausweis vor.
Dieser ist gültig bis 24.9.2035.
Endenergiebedarf beträgt 282.58 kwh/(m²*a).
Wesentlicher Energieträger der Heizung ist Gas.
Das Baujahr des Objekts lt. Energieausweis ist 1901.
Die Energieeffizienzklasse ist H.
GELDWÄSCHE: Als...
Anbieter der Immobilie
VON POLL IMMOBILIEN Wuppertal - Constantin Pauly
Friedrich-Ebert-Straße 38, 42103 Wuppertal
Online-ID: 2lzqk5t
Referenznummer: 25 063 033
Finde Angebote wie dieses
Hier geht es zu unserem Impressum, den Allgemeinen Geschäftsbedingungen, den Hinweisen zum Datenschutz und nutzungsbasierter Online-Werbung.