
Aigner Immobilien GmbH
Frau Sabrina Sachs
+49 ···
Nr. anzeigenPreise & Kosten
Provision für Käufer
3,57% inkl. MwSt.
Die Käuferprovision beträgt 3,57% inkl. gesetzl. MwSt. vom wirtschaftlichen Kaufpreis. Unsere Angebote erfolgen freibleibend und unverbindlich. Irrtum und Zwischenverkauf bleiben vorbehalten.
Lage
Polling liegt in der Region Südostoberbayern etwa drei Kilometer entfernt von Mühldorf.
Die attraktive Nachbarstadt Mühldorf a. Inn mit seinen ca. 23.000 Einwohnern liegt in der reizvollen landschaftlichen Lage des oberbayerischen Voralpenlandes etwa auf halbem Wege zwischen München und Passau direkt am Inn.
Im...
Das Haus
Kategorie
Einfamilienhaus
Baujahr
1978
Energie & Heizung
Warum sehe ich diese Anzeige? – Du siehst diese Anzeige basierend auf Ihrer Navigation auf unserer Website und den Suchkriterien, die du verwendet hast.
Energieausweistyp
Bedarfsausweis
Gebäudetyp
Wohngebäude
Baujahr laut Energieausweis
1978
Gültigkeit
bis 19.09.2035
Endenergiebedarf
172,00 kWh/(m²·a)
Weitere Energiedaten
Energieträger
Öl
Heizungsart
Zentralheizung
Details
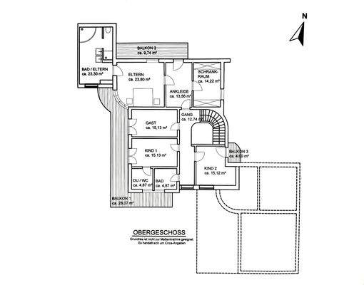
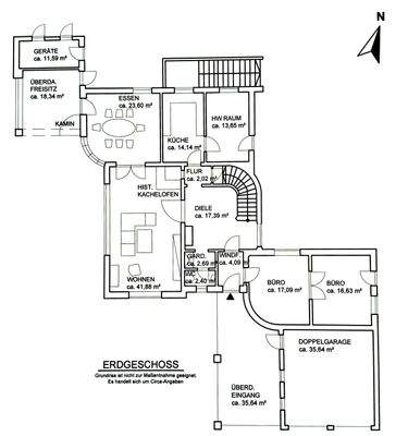
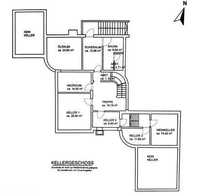
Objektbeschreibung
Dieses im Jahr 1978 erbaute Landhaus bietet mit rund 321 m² Wohnfläche und einem großzügigen Grundstück von gesamt 5.261 m² ein Zuhause, das Raum, Natur und Charakter vereint. Der weitläufige Garten mit drei Biotopen, einem Bach und einem charmanten Blockhaus macht das Anwesen zu einer Oase, die Ruhe und Geborgenheit...
Ausstattung
* großes Grundstück für Naturliebhaber, Insgesamt 5.261 m² Grund: Grundstück mit Wohngebäude 2.289 m², Waldfläche, Wasserfläche, Grünfläche 2.763 m², Zufahrt 209 m²
* sehr schön eingewachsen
* drei Teiche
* sehr solide gebautes Anwesen
* viel Potential
* großzügiger Grundriss
* historischer...
Weitere Informationen
Sonstiges
Heizungsart: Zentralheizung
Befeuerung/Energieträger: Öl
Energieausweistyp: Bedarfsausweis
Energieeffizienzklasse: F
Energiekennwert: 172 kWh/(m²*a)
Baujahr: 1978
- https://aigner-immobilien.de/objekt/ID-42475/MehrBilderundInfoshier
Zu unseren Marktberichten -...
Anbieter der Immobilie
Aigner Immobilien GmbH
Ruffinistraße 26, 80637 München
Online-ID: 2lzr55p
Referenznummer: 42475
Finde Angebote wie dieses
Hier geht es zu unserem Impressum, den Allgemeinen Geschäftsbedingungen, den Hinweisen zum Datenschutz und nutzungsbasierter Online-Werbung.