

CW Immobilien
Frau Christine Wagner
017 ···
Nr. anzeigenPreise & Kosten
Provision für Käufer
3,57 %
Lage
In unmittelbarer Nähe befinden sich alle Versorger für den täglichen Bedarf.
Sowie auch Schulen und Kindergärten.
Eine Bushaltestelle ist ca. 500 Meter entfernt.
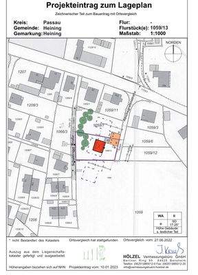
Das Grundstück
Details
Objektbeschreibung
Das schöne große Baugrundstück 1045 m² mit Blick auf die Donau,
liegt in einer sehr schönen und idyllischer Lage in Passau-Heining, umgeben von Ein- bzw. Zweifamilienhäuser.
Grundstück: Flur Nr. 1059/7 = 1047 m², Bebauung E + Obergeschoss
Das Grundstück ist erschlossen.
Kein Bauzwang.
Geh- und...
Weitere Informationen
Stichworte
Bebaubarkeit: Bebauungsplan, nach § 34 BauGB Nachbarkeit
Dokumente
Anbieter der Immobilie
CW Immobilien
Südliche Münchner Str. 34, 82031 Grünwald

Online-ID: 2lzwh5m
Finde Angebote wie dieses
Hier geht es zu unserem Impressum, den Allgemeinen Geschäftsbedingungen, den Hinweisen zum Datenschutz und nutzungsbasierter Online-Werbung.