
EHL Immobilien GmbH
Frau Andrea PÖCHHACKER; MSc
+43 ···
Nr. anzeigenPreise & Kosten
Provision für Käufer
Provision bezahlt der Abgeber.
Lage
Gelegen an der Waldstraße/Ecke Haydnstraße in St. Pölten genießt man die Vorzüge zweier Welten. Zum einen befinden Sie sich mitten im Grünen und können die Natur genießen. Zum anderen sind die Innenstadt und der Bahnhof bequem zu Fuß erreichbar. Darüber hinaus gibt es Schulen und Einkaufsmöglichkeiten in unmittelbarer Nähe...
Das Haus
Kategorie
Reihenmittelhaus
Baujahr
2025
Bezug
Voraussichtlich Sommer 2025
Energie & Heizung
Warum sehe ich diese Anzeige? – Du siehst diese Anzeige basierend auf Ihrer Navigation auf unserer Website und den Suchkriterien, die du verwendet hast.
Heizwärmebedarf (HWB)
43,22 kWh/(m²·a)
Gesamtenergieeffizienz (fGEE)
0,85
Weitere Energiedaten
Heizungsart
Fußbodenheizung
Details
Objektbeschreibung
_JETZT NEU - Vorsorgeimmobilie erwerben und Grunderwerbsteuer sparen!_
Willkommen im exklusiven Neubauprojekt "Nova Terra - Wohnen mit Perspektive"
In erstklassiger Lage am Eisberg in St. Pölten entstehen 56 moderne Reihen- und Doppelhäuser - ein Investment mit Zukunft! Diese einzigartige Wohnanlage vereint...
Weitere Informationen
Stichworte
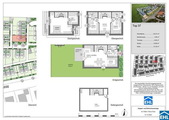
Tiefgarage vorhanden, West-Balkon/Terrasse, Anzahl der Badezimmer: 3, Anzahl der separaten WCs: 4, Anzahl Terrassen: 2, Balkon-Terrassen-Fläche: 14,66 m², Gartenfläche: 74,89 m², Kellerfläche: 31,35 m², Bundesland: Niederösterreich, Wohnungsnr.: 37
Dokumente
Anbieter der Immobilie
EHL Immobilien GmbH
Prinz-Eugen-Straße 8-10, 1040 WIEN
Online-ID: 2lzx35g
Referenznummer: OBGC2025071411460783691fd5b0d0a
Finde Angebote wie dieses
Günstige Immobilienfinanzierung einfach online berechnen
Persönliches Angebot berechnenWarum sehe ich diese Werbung? – Du siehst diese Werbung basierend auf Deiner Navigation auf unserer Website und der von Dir verwendeten Suchkriterien.
Diese Werbung wird bezahlt von durchblicker
Werbung melden
Hier geht es zu unserem Impressum, den Allgemeinen Geschäftsbedingungen, den Hinweisen zum Datenschutz und nutzungsbasierter Online-Werbung.