
ohne-makler.net - Immobilien selbst vermarkten
Privat von A.Stephan
Kontaktiere den Anbieter schriftlich, es ist keine Telefonnummer hinterlegt.
Preise & Kosten
Provision für Käufer
provisionsfrei
Lage
Die Immobilie befindet sich im Zentrum von Rotenburg an der Fulda und profitiert von der hervorragenden Infrastruktur der Stadt. Einkaufsmöglichkeiten, Schulen, Kindergärten, Ärzte sowie zahlreiche Freizeit- und Kulturangebote sind in wenigen Minuten zu Fuß erreichbar. Die Anbindung an den öffentlichen Nahverkehr sowie die...
Das Haus
Kategorie
Mehrfamilienhaus
Baujahr
1900
Bezug
nach Absprache
Energie & Heizung
Warum sehe ich diese Anzeige? – Du siehst diese Anzeige basierend auf Ihrer Navigation auf unserer Website und den Suchkriterien, die du verwendet hast.
Energieausweistyp
Verbrauchsausweis
Gebäudetyp
Wohngebäude
Effizienzklasse
D
Endenergieverbrauch
64,00 kWh/(m²·a)
Weitere Energiedaten
Energieträger
Elektro
Details
Objektbeschreibung
Das zum Verkauf stehende Mehrfamilienhaus wurde um 1900 in traditioneller Fachwerkbauweise errichtet und liegt direkt in der Stadt Rotenburg an der Fulda. Die Bruttogrundfläche des Wohnhauses mit Anbau wurde nach DIN 277 berechnet und beträgt insgesamt 351 m². Die Bruttogrundfläche des Anbaus des Wirtschaftsgebäudes liegt bei...
Ausstattung
Garten, Keller, Duschbad, Einbauküche, Gäste-WC, Teppichboden, Fliesen, Sonstiges (s. Text)
Bemerkungen:
Wohnflächenberechnung und Energiebedarf
. Erdgeschoss: 84 m²
. Obergeschoss: 57 m²
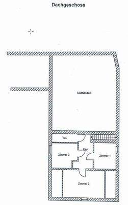
. Dachgeschoss: 39 m²
. Wohnfläche: ca. 180 m²
. 64,3 kWh(m2*a) (Verbrauchsausweis)
. Energieeffizienz B...
Preisinformation
1 Garagenstellplatz
Weitere Informationen
Sonstiges
Heizungsart: Sonstiges (s. Text)
Energieträger: Strom
Das Haus wird von privat verkauft und ist sofort verfügbar. Der Verkaufspreis beträgt 175.000,00 Euro VB. Besichtigungstermine können nach Vereinbarung stattfinden. Ein aktueller Energieausweis mit Datum 03.06.2025 liegt...
Anbieter der Immobilie
ohne-makler.net - Immobilien selbst vermarkten
Humboldtstr. 25 A, 21509 Glinde
Privat von A.Stephan
Dein Ansprechpartner
Kontaktiere den Anbieter schriftlich, es ist keine Telefonnummer hinterlegt.
Online-ID: 2lzx55y
Referenznummer: 401050
Finde Angebote wie dieses
Hier geht es zu unserem Impressum, den Allgemeinen Geschäftsbedingungen, den Hinweisen zum Datenschutz und nutzungsbasierter Online-Werbung.