
Sperr & Zellner Immobilien GmbH
Frau Sandra Fisch
004 ···
Nr. anzeigenPreise & Kosten
Kaution
3 Gesamtkaltmieten = EUR 2.070,00
Provision für Mieter
Bitte beachte, das Angebot kann bei Vertragsabschluss die Zahlung einer Provision beinhalten. Weitere Informationen erhältst Du vom Anbieter.
Warum sehe ich diese Anzeige? – Du siehst diese Anzeige basierend auf Ihrer Navigation auf unserer Website und den Suchkriterien, die du verwendet hast.
Lage
Das angebotene Ladenlokal befindet sich in einer charmanten und wachstumsstarken Gemeinde in der Region Finsing, genauer gesagt im Ortsteil Neufinsing. Diese Region liegt oberbayerisch im Landkreis Erding und besticht durch ihre ländliche Idylle in Kombination mit einer hervorragenden Verkehrsanbindung an die umliegenden...
Die Ladenfläche
Kategorie
Laden
Baujahr
1978
Bezug
nach Vereinbarung
Energie & Heizung
Warum sehe ich diese Anzeige? – Du siehst diese Anzeige basierend auf Ihrer Navigation auf unserer Website und den Suchkriterien, die du verwendet hast.
Wärme
Strom
Energieausweistyp
Verbrauchsausweis
Gebäudetyp
Nicht-Wohngebäude
Baujahr laut Energieausweis
1978
Wesentliche Energieträger
OEL
Gültigkeit
bis 15.09.2035
Endenergieverbrauch (Wärme)
149,80 kWh/(m²·a)
Endenergieverbrauch (Strom)
14,50 kWh/(m²·a)
Details
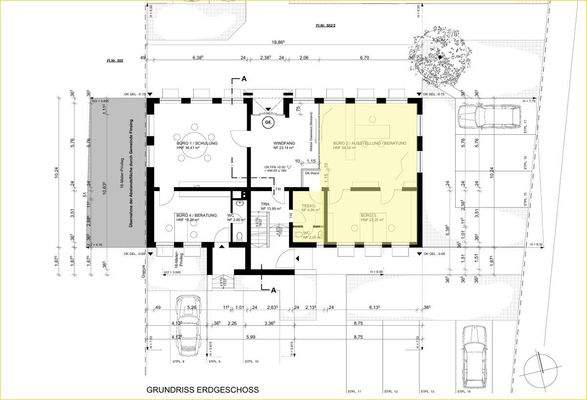
Ausstattung
- Erdgeschoss
- großer Raum mit Fensterfront
- 2 Einzelbüros (auf Grundriss 1 Raum)
- kleine Teeküche inkl. Küche
- WC
- Parkplätze vor den Räumlichkeiten vorhanden
- aktuell Teppichboden
- Lamellenvorhänge
- Glastrennwand (abschließbar)
- keine Gastronomie möglich
Energiedaten:
Baujahr...
Preisinformation
Nettokaltmiete: 690,00 EUR
Weitere Informationen
Sonstiges
Gerne übersenden wir Ihnen ein ausführliches Exposé mit zahlreichen Fotos und Außenansichten - bitte teilen Sie uns hierzu noch Ihren Namen, Ihre Anschrift und Ihre Festnetz-/Mobilnummer mit - vielen Dank!
Sperr & Zellner Immobilien GmbH
Büro Dorfen:...
Anbieter der Immobilie
Sperr & Zellner Immobilien GmbH
Haager Strasse 16 , 84405 Dorfen
Online-ID: 2lzxq5s
Referenznummer: M3786
Finde Angebote wie dieses
Hier geht es zu unserem Impressum, den Allgemeinen Geschäftsbedingungen, den Hinweisen zum Datenschutz und nutzungsbasierter Online-Werbung.