

best advice finance AG
Frau Susan Zimmermann
+49 ···
Nr. anzeigenPreise & Kosten
Kaution
1.350,00 €
Warum sehe ich diese Anzeige? – Du siehst diese Anzeige basierend auf Ihrer Navigation auf unserer Website und den Suchkriterien, die du verwendet hast.
Lage
Die Wohnung befindet sich in einer ruhigen und gewachsenen Wohnlage im Stadtteil Chemnitz-Schönau, der besonders bei Mietern durch seine angenehme Mischung aus Wohnruhe und guter Erreichbarkeit beliebt ist.
Einkaufsmöglichkeiten für den täglichen Bedarf, Ärzte, Schulen und Kindergärten sind bequem erreichbar...
Die Wohnung
Kategorie
Apartment
Wohnungslage
3. Geschoss
Bezug
sofort
Wohnanlage
Energie & Heizung
Warum sehe ich diese Anzeige? – Du siehst diese Anzeige basierend auf Ihrer Navigation auf unserer Website und den Suchkriterien, die du verwendet hast.
Energieausweistyp
Verbrauchsausweis
Gebäudetyp
Wohngebäude
Baujahr laut Energieausweis
1935
Wesentliche Energieträger
Fernwärme
Gültigkeit
17.11.2016 bis 16.11.2026
Effizienzklasse
C
Endenergieverbrauch
92,90 kWh/(m²·a) - Warmwasser enthalten
Weitere Energiedaten
Energieträger
Fernwärme
Details
Objektbeschreibung
Auf dem 565m² großen Grundstück wurde ca. 1935 ein vollunterkellertes, 3-geschossiges Mehrfamilienhaus errichtet. Im Rahmen von umfangreichen Sanierungs- und Modernisierungsmaßnahmen erfolgte etwa 1995 unter anderem auch der Ausbau des Dachgeschosses zu Wohnzwecken.
Laufende Instandhaltungen sind im Auftrag der...
Ausstattung
Sie mieten:
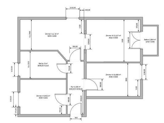
*eine tolle, geräumige 3-Zimmer-Wohnung
*Tageslichtküche mit Essbereich
*gemütlicher Balkon mit Süd-Ausrichtung
*gelegen im 2. Obergeschoss
*Wohnfläche: ca. 66 m²
*helle, gut belichtete Räume
*vor Bezug durch die neuen Mieter: vollständige malermäßige Instandsetzung der Wohnung und...
Weitere Informationen
Sonstiges
Wir freuen uns, Ihnen die Immobilie persönlich zeigen zu dürfen. Rufen Sie uns an und wir vereinbaren einen gemeinsamen Besichtigungstermin.
Wir weisen darauf hin, dass alle Daten und Objektangaben vom Eigentümer stammen. Für die Richtigkeit dieser Angaben, Irrtümer oder Änderungen können wir keine...
Anbieter der Immobilie

best advice finance AG
Abteiweg 1, 09113 Chemnitz

Online-ID: 2m23h5x
Referenznummer: 124259575#Mudj5M
Finde Angebote wie dieses
Hier geht es zu unserem Impressum, den Allgemeinen Geschäftsbedingungen, den Hinweisen zum Datenschutz und nutzungsbasierter Online-Werbung.