
Spormann Real Estate GmbH
Fabian Derix
016 ···
Nr. anzeigenPreise & Kosten
Provision für Käufer
3,57 % des Kaufpreises inkl. MwSt.
Die käuferseitige Provision beläuft sich auf 3,57 % des Kaufpreises inkl. der gesetzlichen Mehrwertsteuer. Mit dem Verkäufer wurde eine Provision in selber Höhe vereinbart.
Lage
Die Lage dieser Immobilie im beliebten Meerbuscher Stadtteil Lank-Latum ist einfach unschlagbar. Nur 3 Minuten Fußweg trennen Sie vom charmanten Ortskern am Marktplatz, wo Sie eine Vielzahl an hervorragenden Gastronomieangeboten erwarten. Hier können Sie in gemütlichen Cafés verweilen oder in erstklassigen Restaurants...
Die Wohnung
Kategorie
Maisonette
Bezug
nach Absprache
Wohnanlage
Energie & Heizung
Warum sehe ich diese Anzeige? – Du siehst diese Anzeige basierend auf Ihrer Navigation auf unserer Website und den Suchkriterien, die du verwendet hast.
Energieausweistyp
Verbrauchsausweis
Gebäudetyp
Wohngebäude
Wesentliche Energieträger
Öl
Gültigkeit
13.08.2024 bis 14.08.2034
Effizienzklasse
D
Endenergieverbrauch
102,00 kWh/(m²·a)
Weitere Energiedaten
Energieträger
Öl
Heizungsart
Zentralheizung
Details
Objektbeschreibung
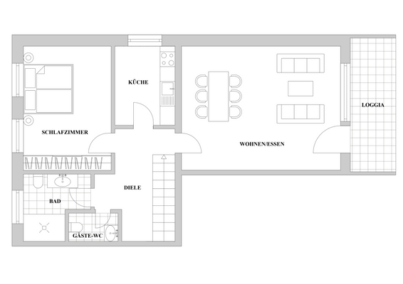
Diese hochwertig ausgestattete Maisonette-Eigentumswohnung verbindet großzügiges Wohnen, eine klare Raumaufteilung und eine angenehme Wohnatmosphäre - ideal für Familien, die Wert auf Komfort und Flexibilität legen.
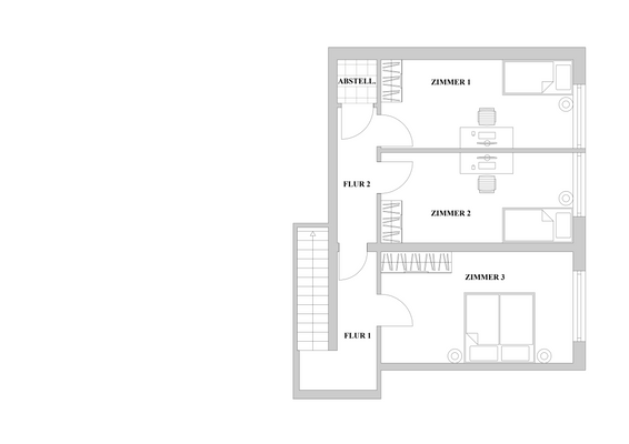
Im Hochparterre erwartet Sie ein harmonischer Wohnbereich mit viel Tageslicht. Der ruhige Schlafbereich...
Ausstattung
- Hochwertiger Vinylboden im Wohn-/Essbereich, originales Parkett darunter erhalten
- Hochwertige Einbauküche wird für 20.000 EUR mit veräußert
- Stilvolles Duschbad mit großer Walk-In-Dusche
- Separates Gäste-WC
- Überdachter Süd-Balkon mit Blick in den Garten
- Drei helle Zimmer in der unteren Ebene, jeweils...
Preisinformation
1 Garagenstellplatz
Weitere Informationen
Sonstiges
Der Gesamtkaufpreis der Wohnung beträgt 519.000 EUR und setzt sich wie folgt zusammen:
499.000 EUR Kaufpreis Wohnung + 20.000 EUR Kaufpreis Einbauküche
SPORMANN REAL ESTATE - https://www.spormann-realestate.com
Stichworte
Garage vorhanden, Anzahl der Schlafzimmer: 4, Anzahl der Badezimmer: 1...
Anbieter der Immobilie
Spormann Real Estate GmbH
Königsallee 27, 40212 Düsseldorf
Online-ID: 2m2445s
Referenznummer: V02-5004066844-01
Finde Angebote wie dieses
Hier geht es zu unserem Impressum, den Allgemeinen Geschäftsbedingungen, den Hinweisen zum Datenschutz und nutzungsbasierter Online-Werbung.