

GfG Hoch-Tief-Bau GmbH & Co. KG
Firma GfG Hoch-Tief-Bau GmbH & Co.KG Dage Wortmann (HB)
040 ···
Nr. anzeigenPreise & Kosten
Provision für Käufer
Projektierungspauschale von 3,57%
Lage
Das Grundstück befindet sich in einer ruhigen Wohngegend im Stadtteil Hamburg-Poppenbüttel. Diese Lage bietet die perfekte Kombination aus Stadtnähe und Naturverbundenheit.
Die Hinsbeker Berg ist eine Anliegerstraße, wodurch der Verkehr auf ein Minimum beschränkt ist. Dadurch genießen die Bewohner eine angenehme Ruhe...
Das Haus
Baujahr
2025
Bezug
2026
Energie & Heizung
Warum sehe ich diese Anzeige? – Du siehst diese Anzeige basierend auf Ihrer Navigation auf unserer Website und den Suchkriterien, die du verwendet hast.
Weitere Energiedaten
Haustyp
Massivhaus
Energieträger
Elektro, Solar
Heizungsart
Fußbodenheizung, Luft-/Wasser-Wärmepumpe
Details
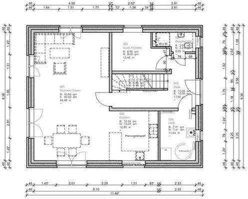
Objektbeschreibung
In der gefragten Lage Poppenbüttel entwickeln wir gemeinsam mit Ihnen Ihr neues Zuhause.
Das angebotene Grundstück verfügt über 573 m² und ist optimal nach Süden ausgerichtet – ideale Voraussetzungen für helle Räume und ein sonniges Wohnumfeld. Die Grundstücksgröße kann in Abstimmung derzeit noch angepasst werden, wodurch...
Weitere Informationen
Besichtigungstermine
Ihre persönlichen Ansprechpartner:
Dage Wortmann
0151-18861544
040-524781416
dage.wortmann@gfg24.de
Stichworte
Versorgung: Städtische Wasserversorgung, Städtische Stromversorgung
Dokumente
Anbieter der Immobilie
GfG Hoch-Tief-Bau GmbH & Co. KG
Pomonaring 115, 22926 Ahrensburg

Online-ID: 2m24b5y
Referenznummer: HB_DW_6
Finde Angebote wie dieses
Hier geht es zu unserem Impressum, den Allgemeinen Geschäftsbedingungen, den Hinweisen zum Datenschutz und nutzungsbasierter Online-Werbung.