

Dressel Immobilien GmbH
Herr Marcel Bayrug
092 ···
Nr. anzeigenPreise & Kosten
Provision für Käufer
3,57% (inkl. MwSt)
Lage
Die Doppelhaushälfte liegt in einer der begehrtesten Wohngegenden des Bayreuther Stadtteils St. Georgen, einem idyllischen und äußerst ruhigen Wohngebiet, das besonders bei Familien beliebt ist. Die direkte Nachbarschaft ist geprägt von gepflegten Einfamilienhäusern und weitläufigen Gärten, die für eine angenehme und...
Das Haus
Kategorie
Doppelhaushälfte
Baujahr
1979
Bezug
nach Absprache
Energie & Heizung
Warum sehe ich diese Anzeige? – Du siehst diese Anzeige basierend auf Ihrer Navigation auf unserer Website und den Suchkriterien, die du verwendet hast.
Energieausweistyp
Bedarfsausweis
Gebäudetyp
Wohngebäude
Wesentliche Energieträger
Öl
Gültigkeit
bis 13.12.2034
Effizienzklasse
E
Endenergiebedarf
140,30 kWh/(m²·a)
Weitere Energiedaten
Energieträger
Öl
Heizungsart
offener Kamin, Zentralheizung
Details
Objektbeschreibung
In einer der begehrtesten Lagen von Bayreuth und direkt beim Landesgartenschaugelände erwartet Sie diese äußerst gepflegte und großzügige Doppelhaushälfte - ein Zuhause, das sowohl durch seine ruhige Umgebung als auch durch die Nähe zu Schulen, Kindergärten und der Innenstadt überzeugt. Mit einer Wohnfläche von...
Ausstattung
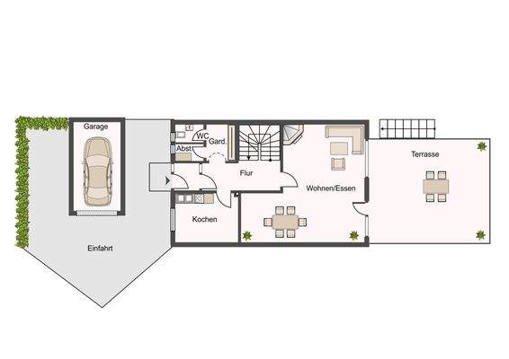
- 182m² Wohnfläche auf 4 Etagen, lichtdurchflutet
- 358m² Grundstück in ruhiger, idyllischer Lage
- Garten mit Südausrichtung und gepflegter Rasenfläche
- Baujahr 1979, sehr gepflegter Zustand
- Bezugsfertig nach Absprache, keine Renovierung nötig
- 50m² Terrasse mit hochwertigen WPC-Dielen
-...
Preisinformation
2 Garagenstellplätze
Weitere Informationen
Sonstiges
Der Käufer zahlt im Erfolgsfall an die Firma Dressel Immobilien GmbH eine Käufer- Maklerprovision in Höhe von 3,57% inkl. 19% MwSt. Die Provision errechnet sich aus dem beurkundeten Kaufpreis.
Dieses Exposé ist eine Vorabinformation, als Rechtsgrundlage gilt allein der notariell abgeschlossene Kaufvertrag...
Anbieter der Immobilie
Dressel Immobilien GmbH
Kemnather Straße 27, 95448 Bayreuth

Online-ID: 2m24n5m
Referenznummer: 8733
Finde Angebote wie dieses
Hier geht es zu unserem Impressum, den Allgemeinen Geschäftsbedingungen, den Hinweisen zum Datenschutz und nutzungsbasierter Online-Werbung.