

Maklerbuero Conny Hofmann / Conny Hofmann Immobilienmanagement
Frau Conny Hofmann
015 ···
Nr. anzeigenPreise & Kosten
Kaution
3 Nettokaltmieten
Warum sehe ich diese Anzeige? – Du siehst diese Anzeige basierend auf Ihrer Navigation auf unserer Website und den Suchkriterien, die du verwendet hast.
Lage
Ihre neue Wohnung befindet sich im Stadtteil Lausen-Grünau, mit sehr guter Anbindung in die Innenstadt per Bahn oder Auto oder Fahrrad. Sie wohnen unweit vom beliebten Erholungsgebiet Kulkwitzer See, dort hin können Sie in 5 Minuten zu Fuß gelangen.
Einkaufsmöglichkeiten sind ebenso nur wenige Minuten entfernt erreichbar.
Die Wohnung
Bezug
nach Absprache
Wohnanlage
Energie & Heizung
Warum sehe ich diese Anzeige? – Du siehst diese Anzeige basierend auf Ihrer Navigation auf unserer Website und den Suchkriterien, die du verwendet hast.
Energieausweistyp
Verbrauchsausweis
Gebäudetyp
Wohngebäude
Baujahr laut Energieausweis
1984
Gültigkeit
04.12.2018 bis 04.12.2028
Endenergieverbrauch
57,00 kWh/(m²·a) - Warmwasser enthalten
Weitere Energiedaten
Energieträger
Fernwärme
Heizungsart
Zentralheizung
Details
Objektbeschreibung
Die Wohnung befindet sich in einem sanierten Plattenbau mit sehr guter Anbindung in die Innenstadt und nur 5 Minuten bis zum Kulkwitzer See. Sie wohnen hier im Grünen. Ebenso sind die Anbindung der öffentlichen Verkehrsmittel optimal gelegen.
Ausstattung
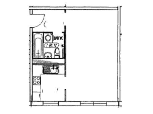
- Hochparterre
- 1 Raumwohnung
- offene Küche zum Wohnzimmer
- Bad mit Wanne
- Laminat
- REFERENZBILDER - aktuell finden noch Arbeiten statt -
Es erwartet Sie eine gepflegte 1-Raumwohnung mit Laminatboden. Direkt vom Wohnzimmer aus gelangen Sie in die Küche, welche offen zum Wohnzimmer gestaltet wurde...
Preisinformation
Kaution: 3 Nettokaltmieten
Weitere Informationen
Sonstiges
Habe ich Ihr Interesse geweckt? So senden Sie mir bitte eine Email an vermietung@maklerbuero.immobilien
Wir werden uns zeitnah bei Ihnen melden!
Bitte sehen Sie von Telefonanrufen ab, da wir aus zeitlichen Gründen aktuell nur E-Mails beantworten! Besten Dank
Bitte haben Sie Verständnis, das Alle...
Anbieter der Immobilie
Maklerbuero Conny Hofmann / Conny Hofmann Immobilienmanagement
Saarländer Str. 17, 04179 Leipzig

Online-ID: 2m2595z
Referenznummer: J_L_AG68_EG_39_1RW_11
Finde Angebote wie dieses
Hier geht es zu unserem Impressum, den Allgemeinen Geschäftsbedingungen, den Hinweisen zum Datenschutz und nutzungsbasierter Online-Werbung.