
ohne-makler.net - Immobilien selbst vermarkten
Angebot von Frau Lachhein
Kontaktiere den Anbieter schriftlich, es ist keine Telefonnummer hinterlegt.
Preise & Kosten
Provision für Käufer
provisionsfrei
Lage
Über den Dächern Oberschwandorfs, ca. 8 km von Nagold entfernt, befindet sich diese traumhafte neue Penthouse-Wohnung, direkt am Waldrand.
In einem Mehrfamilienhaus (7 Wohneinheiten), überwiegend von Wohnungseigentümern ist nur noch diese Wohnung frei.
Die Bushaltestelle ist nur wenige Meter entfernt. Stündliche...
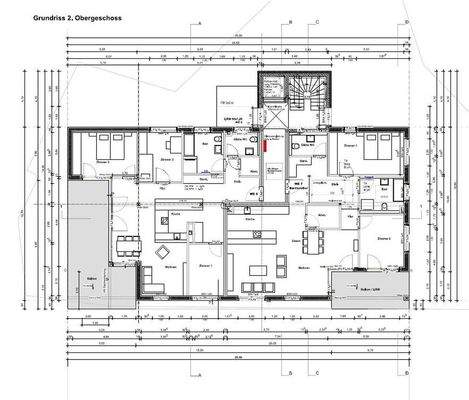
Die Wohnung
Kategorie
Penthouse
Wohnungslage
2. Geschoss
Bezug
sofort
Wohnanlage
Energie & Heizung
Warum sehe ich diese Anzeige? – Du siehst diese Anzeige basierend auf Ihrer Navigation auf unserer Website und den Suchkriterien, die du verwendet hast.
Energieausweistyp
Bedarfsausweis
Gebäudetyp
Wohngebäude
Effizienzklasse
A+
Endenergiebedarf
27,00 kWh/(m²·a)
Weitere Energiedaten
Heizungsart
Fußbodenheizung, Luft-/Wasser-Wärmepumpe
Details
Objektbeschreibung
Diese exklusive Penthouse-Wohnung erfüllt alle Ihre Erwartungen und kann sofort bezogen werden.
Auf 3,5 lichtdurchfluteten Zimmern erleben Sie Wohnkomfort auf hohem Niveau. Der offene Wohn- und Essbereich bietet viel Raum zur individuellen Gestaltung - ob stilvolles Dinner, gemütlicher Familienabend oder Home-Office...
Ausstattung
Balkon, Terrasse, Keller, Fahrstuhl, Vollbad, Gäste-WC, Barrierefrei, Parkett, Fliesen
Bemerkungen:
Neubau/Erstbezug
Luft-/Wärmepumpe
Fußbodenheizung (geringe Energiekosten)
Elektrische Rollläden, keine Jalousien, dadurch komplette Verdunklung.
Großformatige Fliesen im Badezimmer und Gäste-WC
Zwei...
Preisinformation
1 Stellplatz, Kaufpreis: 20.000,00 EUR
1 Tiefgaragenstellplatz, Kaufpreis: 20.000,00 EUR
Weitere Informationen
Sonstiges
Heizungsart: Fußbodenheizung
Energieträger: Luft-/Wasserwärme
Erwerb direkt vom Bauträger, es fallen keine Maklergebühren an.
ohne-makler (OM) ist weder Anbieter noch Vermittler der Immobilie. OM betreibt eine Plattform für Immobilieneigentümer, die unter anderem die gleichzeitige...
Dokumente
Anbieter der Immobilie
ohne-makler.net - Immobilien selbst vermarkten
Humboldtstr. 25 A, 21509 Glinde
Angebot von Frau Lachhein
Dein Ansprechpartner
Kontaktiere den Anbieter schriftlich, es ist keine Telefonnummer hinterlegt.
Online-ID: 2m25j5t
Referenznummer: 390517
Finde Angebote wie dieses
Hier geht es zu unserem Impressum, den Allgemeinen Geschäftsbedingungen, den Hinweisen zum Datenschutz und nutzungsbasierter Online-Werbung.