
Michael Kuri Immobilien
076 ···
Nr. anzeigenPreise & Kosten
Provision für Käufer
3,57 % (inkl. 19% gesetzl. MwSt.)
Die Käuferprovision beträgt 3,57% (inkl. 19% gesetzl. MwSt.) vom notariell beurkundeten Kaufpreis.
Lage
Nimburg, ein charmanter Ortsteil der Gemeinde Teningen, liegt malerisch am westlichen Rand des Kaiserstuhls und überzeugt durch seine naturnahe und zugleich gut angebundene Lage. Die Umgebung ist geprägt von Wiesen, Feldern und Weinbergen - ideal für Spaziergänge, Radtouren oder einfach zum Entspannen im...
Die Wohnung
Wohnungslage
Erdgeschoss
Derzeitige Nutzung
vermietet
Wohnanlage
Energie & Heizung
Warum sehe ich diese Anzeige? – Du siehst diese Anzeige basierend auf Ihrer Navigation auf unserer Website und den Suchkriterien, die du verwendet hast.
Energieausweistyp
Verbrauchsausweis
Gebäudetyp
Wohngebäude
Wesentliche Energieträger
Gas
Gültigkeit
20.05.2019 bis 19.05.2029
Effizienzklasse
B
Endenergieverbrauch
65,40 kWh/(m²·a) - Warmwasser enthalten
Weitere Energiedaten
Energieträger
Gas
Heizungsart
Zentralheizung
Details
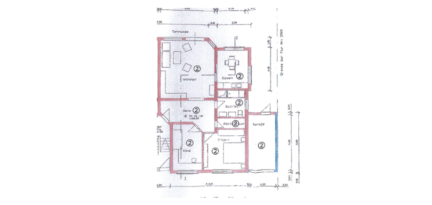
Objektbeschreibung
In angenehmer Wohnlage von Teningen-Nimburg befindet sich diese gepflegte 3,5-Zimmer-Erdgeschosswohnung mit ca. 91?m² Wohnfläche in einem im Jahr 2002 erbauten Mehrfamilienhaus mit insgesamt 5 Wohneinheiten.
Die Wohnung ist aktuell vermietet und überzeugt mit einer durchdachten Raumaufteilung und einem großzügigen...
Ausstattung
- Baujahr 2002
- 3,5 Zimmer
- Wohnfläche ca. 91 m²
- Offener Wohn- und Essbereich mit direkten Zugang zur Terrasse
- 2 geräumige Schlafzimmer vorhanden
- Tageslichtbad
- separater Abstellraum
- Schöner Gartenanteil zur Wohnung
- Gas-Zentralheizung
- 1 x Garage + Stellplatz vor der Garage vorhanden
Preisinformation
1 Garagenstellplatz
Weitere Informationen
Sonstiges
Alle im Exposé genannten Angaben beruhen auf den Aussagen der Eigentümer und den uns zur Verfügung gestellten Unterlagen. Es wird daher keine Gewähr für die Richtigkeit der Angaben übernommen.
Stichworte
Garage vorhanden, Anzahl der Badezimmer: 1, Anzahl Balkone: 1, Balkon-Terrassen-Fläche: 10,00 m²...
Anbieter der Immobilie
Online-ID: 2m27y55
Referenznummer: 793
Finde Angebote wie dieses
Hier geht es zu unserem Impressum, den Allgemeinen Geschäftsbedingungen, den Hinweisen zum Datenschutz und nutzungsbasierter Online-Werbung.