
ohne-makler.net - Immobilien selbst vermarkten
Angebot von Preismeyer Verwaltungs GmbH
Kontaktiere den Anbieter schriftlich, es ist keine Telefonnummer hinterlegt.
Preise & Kosten
Provision für Käufer
provisionsfrei
Lage
Die Mozartstraße verläuft als Horizontale vom östlich gelegenen Paulusviertel in Richtung zur westlich gelegenen Saale quer durch den Stadtteil Giebichenstein in der nördlichen Innenstadt.
Der Stadtteil Giebichenstein bekam seinen Namen von der direkt an der Saale liegenden Burg Giebichenstein, welche bereits im 12...
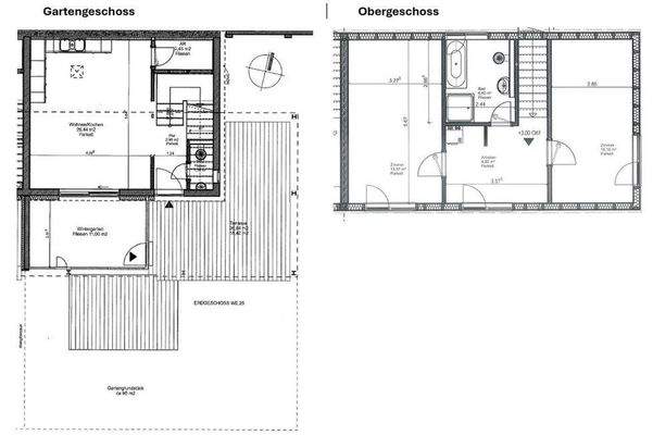
Die Wohnung
Kategorie
Maisonette
Wohnungslage
Erdgeschoss
Bezug
sofort
Wohnanlage
Energie & Heizung
Warum sehe ich diese Anzeige? – Du siehst diese Anzeige basierend auf Ihrer Navigation auf unserer Website und den Suchkriterien, die du verwendet hast.
Energieausweistyp
Bedarfsausweis
Gebäudetyp
Wohngebäude
Effizienzklasse
A+
Endenergiebedarf
27,00 kWh/(m²·a)
Weitere Energiedaten
Heizungsart
Luft-/Wasser-Wärmepumpe
Details
Objektbeschreibung
Die beiden Remisenhäuser liegen zentral im Hof. Sie wurden zwischen 2023 und 2025 durch Aufstockung der Bestandsremisen errichtet und warten mit einem modernen Design, hochwertigen Materialien sowie einer energieeffiziente Ausstattung mit Wärmepumpe und Wärmedämmung in Klinkeroptik (Energieausweis A+) auf.
Ein...
Ausstattung
Terrasse, Garten, Keller, Vollbad, Gäste-WC, Parkett, Fliesen
Bemerkungen:
Die Häuser Mozartstraße 16, 17 und 18 wurden in den 1930ern in einheitlicher Bauweise errichtet und bilden heute eine aufgewertete denkmalgeschützte Wohnanlage. Die drei Vorderhäuser wurden ohne Seitenflügel oder Quergebäude gebaut, sodass...
Preisinformation
1 Stellplatz, Kaufpreis: 7.000,00 EUR
1 Garagenstellplatz, Kaufpreis: 7.000,00 EUR
Weitere Informationen
Sonstiges
Heizungsart: Sonstiges (s. Text)
Energieträger: Luft-/Wasserwärme
Garage oder/und Stellplatz im Hof möglich (siehe Exposé)
Makleranfragen nicht erwünscht. Nach § 7 UWG sind unaufgeforderte Kontaktaufnahmen durch Makler ohne ausdrückliche Einwilligung des Empfängers verboten!
ohne-makler...
Dokumente
Anbieter der Immobilie
ohne-makler.net - Immobilien selbst vermarkten
Humboldtstr. 25 A, 21509 Glinde
Angebot von Preismeyer Verwaltungs GmbH
Dein Ansprechpartner
Kontaktiere den Anbieter schriftlich, es ist keine Telefonnummer hinterlegt.
Online-ID: 2m2885s
Referenznummer: 415178
Finde Angebote wie dieses
Hier geht es zu unserem Impressum, den Allgemeinen Geschäftsbedingungen, den Hinweisen zum Datenschutz und nutzungsbasierter Online-Werbung.