
Peter Wagner Immobilien AG
Sebastian Egger
Kontaktiere den Anbieter schriftlich, es ist keine Telefonnummer hinterlegt.
Preise & Kosten
Provision für Mieter
Bitte beachte, das Angebot kann bei Vertragsabschluss die Zahlung einer Provision beinhalten. Weitere Informationen erhältst Du vom Anbieter.
Warum sehe ich diese Anzeige? – Du siehst diese Anzeige basierend auf Ihrer Navigation auf unserer Website und den Suchkriterien, die du verwendet hast.
Lage
Die angebotene Gewerbefläche befindet sich in zentraler Innenstadtlage von Augsburg, in der Karolinenstraße 21 - einer traditionsreichen und stark frequentierten Geschäftsstraße zwischen Rathausplatz und Obstmarkt. Das Umfeld ist geprägt von einer lebendigen Mischung aus Einzelhandelsgeschäften, Gastronomiebetrieben und...
Die Ladenfläche
Kategorie
Verkaufsfläche
Bezug
01.01.2026
Erdgeschoss
Details
Objektbeschreibung
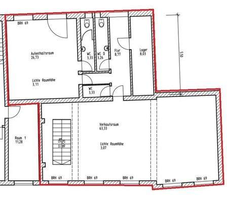
Im Objekt Karolinenstraße 21, mitten in der Augsburger Innenstadt, erstreckt sich die angebotene Mietfläche über das Erdgeschoss und das 1. Obergeschoss, die durch eine interne Treppe miteinander verbunden sind. Die Einheit bietet eine Vielzahl an Nutzungsmöglichkeiten und eignet sich besonders für gastronomische Konzepte...
Ausstattung
51,18 m² Verkaufsraum / Gastraum im EG
63,33 m² Verkaufsraum / Gastraum im 1. OG
26,73 m² Aufenthaltsraum im 1. OG
26,72 m² Lagerraum, drei separate WCs für Kunden und Personal, Flur
Weitere Informationen
Energiepass
Energieausweis wird bei Besichtigung vorgelegt.
Stichworte
Gesamtfläche: 167,96 m²
Anbieter der Immobilie
Peter Wagner Immobilien AG
Holbeinstr. 7, 86150 Augsburg
Sebastian Egger
Dein Ansprechpartner
Kontaktiere den Anbieter schriftlich, es ist keine Telefonnummer hinterlegt.
Online-ID: 2m28w57
Referenznummer: 166037
Finde Angebote wie dieses
Hier geht es zu unserem Impressum, den Allgemeinen Geschäftsbedingungen, den Hinweisen zum Datenschutz und nutzungsbasierter Online-Werbung.