
BWH Bauwerk Hamburg Kapital GmbH
Frau Katharina Kähler
040 ···
Nr. anzeigenPreise & Kosten
Provision für Käufer
provisionsfrei
Lage
Eimsbüttel, einer der beliebtesten Stadtteile Hamburgs, der durch seine Mischung aus urbanem Flair und grünen Oasen besticht.
Geprägt von charmanten Altbauten und modernen Wohnanlagen, bietet Eimsbüttel eine hohe Lebensqualität. Der Stadtteil und vor allem die Osterstraße zeichnen sich durch eine perfekte Anbindung an...
Gastronomie/Hotel
Kategorie
Café/Bar
Baujahr
1990
Energie & Heizung
Warum sehe ich diese Anzeige? – Du siehst diese Anzeige basierend auf Ihrer Navigation auf unserer Website und den Suchkriterien, die du verwendet hast.
Energieausweistyp
Verbrauchsausweis
Gebäudetyp
Wohngebäude
Baujahr laut Energieausweis
1997
Wesentliche Energieträger
Gas
Gültigkeit
17.01.2019 bis 17.01.2029
Effizienzklasse
D
Endenergieverbrauch
101,00 kWh/(m²·a) - Warmwasser enthalten
Details
Objektbeschreibung
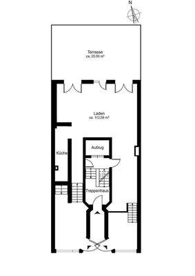
Inmitten der beliebten Osterstraße – dem Herzen von Hamburg-Eimsbüttel – präsentiert sich diese attraktive und großzügige Gewerbeeinheit.
Das 1990 errichtete Gebäude umfasst sechs Etagen mit elf Einheiten und befindet sich in einem gepflegten Gesamtzustand. Im Erdgeschoss vereinen sich zwei zusammengelegte...
Ausstattung
Die Gewerbefläche liegt im Erdgeschoss und befindet sich in einem gepflegten Zustand.
Die Ausstattung der Einheit auf einen Blick:
- Großzügige Ladenfläche mit Fensterfront
- Ruhige Terrasse zum Hinterhof
- Teilweise Saniert
- Kunden-WC im Souterrain
- Fliesenboden in der gesamten...
Weitere Informationen
Sonstiges
Diese Verkaufsaufgabe haben wir nach bestem Wissen und Gewissen erstellt.
Trotz nötiger Sorgfalt übernehmen wir keine Gewähr für die Richtigkeit, Aktualität und Vollständigkeit der Angaben. Fehler, Änderungen, Irrtümer und der Zwischenverkauf bleiben jederzeit vorbehalten. Der Inhalt ist vertraulich und nur...
Dokumente
Anbieter der Immobilie

BWH Bauwerk Hamburg Kapital GmbH
Ehrenbergstr. 54, 22767 Hamburg
Online-ID: 2m2ch5y
Referenznummer: OS50_GE.14
Finde Angebote wie dieses
Hier geht es zu unserem Impressum, den Allgemeinen Geschäftsbedingungen, den Hinweisen zum Datenschutz und nutzungsbasierter Online-Werbung.