
Rutz Immobilien GmbH
Herr Jan Lippert
004 ···
Nr. anzeigenPreise & Kosten
Provision für Käufer
3,57% (inkl. MwSt.) vom beurkundeten Kaufpreis (Käuferprovision)
Lage
Das Objekt liegt in einer ruhigen, zugleich aber zentral gelegenen Wohngegend von Delmenhorst. Die Nachbarschaft wird durch eine angenehme Mischung aus gepflegten Einfamilienhäusern und kleineren Mehrfamilienhäusern geprägt, was zu einem harmonischen Wohnumfeld beiträgt.
In unmittelbarer Nähe laden Grünflächen und...
Das Haus
Kategorie
Einfamilienhaus
Baujahr
1961
Bezug
nach Vereinbarung
Energie & Heizung
Warum sehe ich diese Anzeige? – Du siehst diese Anzeige basierend auf Ihrer Navigation auf unserer Website und den Suchkriterien, die du verwendet hast.
Energieausweistyp
Bedarfsausweis
Gebäudetyp
Wohngebäude
Baujahr laut Energieausweis
1961
Wesentliche Energieträger
GAS
Gültigkeit
bis 07.09.2035
Effizienzklasse
H
Endenergiebedarf
293,90 kWh/(m²·a)
Weitere Energiedaten
Energieträger
Gas
Heizungsart
offener Kamin, Zentralheizung
Details
Objektbeschreibung
Dieses im Jahr 1961 erbaute Einfamilienhaus steht auf einem 540m² großen Grundstück und bietet mit rund 210m² Wohnfläche viel Raum für die ganze Familie. Die ruhige Wohnlage mit guter Nachbarschaft und die Nähe zu Schulen, Kindergärten und Einkaufsmöglichkeiten machen die Immobilie besonders attraktiv für Familien.
Im...
Ausstattung
+ Brötje-Gasheizung mit Warmwasserzubereitung (2018)
+ Offener Kamin (Außen & Innen)
+ 2-fach verglaste Holzrahmenfenster (teilw. 2000, der Rest älter)
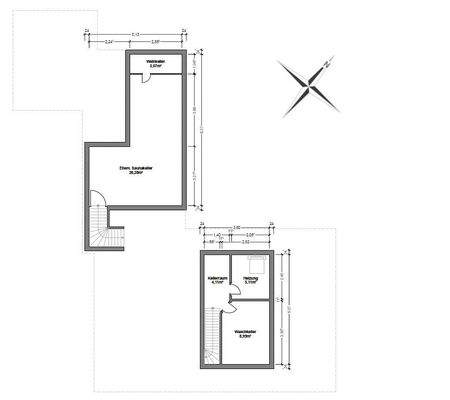
+ 2x Keller jeweils teilunterkellert
+ Sicherungskasten mit Schraubsicherungen im Erdgeschoss und Schaltsicherungen im Obergeschoss, Elektrik...
Preisinformation
1 Stellplatz
1 Garagenstellplatz
Weitere Informationen
Sonstiges
Wir weisen darauf hin, dass die von uns weitergegebenen Objektinformationen, Unterlagen, Pläne etc. vom Auftraggeber stammen. Eine Haftung für die Richtigkeit oder Vollständigkeit der Angaben übernehmen wir nicht. Es obliegt daher unseren Kunden, die darin enthaltenen Objektinformationen und Angaben auf ihre...
Anbieter der Immobilie
Rutz Immobilien GmbH
Schildstraße 8, 27753 Delmenhorst
Online-ID: 2m2dq5l
Referenznummer: Ref.-Nr. 731
Finde Angebote wie dieses
Hier geht es zu unserem Impressum, den Allgemeinen Geschäftsbedingungen, den Hinweisen zum Datenschutz und nutzungsbasierter Online-Werbung.