
RAUM_IMMOBILIEN GmbH
Herr Lukas Akdil
004 ···
Nr. anzeigenPreise & Kosten
Kaution
2.460,00
Provision für Mieter
2 Kaltmieten zzgl. MwSt. inkl. MwSt.
Warum sehe ich diese Anzeige? – Du siehst diese Anzeige basierend auf Ihrer Navigation auf unserer Website und den Suchkriterien, die du verwendet hast.
Lage
Die angebotene Büroetage befindet sich in einer erstklassigen Lage in einem lebhaften Stadtteil von Augsburg, angrenzend zur Innestadt. Diese Gegend ist bekannt für ihre ausgezeichnete urbane Infrastruktur und bietet eine hervorragende Anbindung an öffentliche Verkehrsmittel, was eine unkomplizierte Erreichbarkeit sowohl für...
Büro-/Praxisfläche
Kategorie
Bürogebäude
Baujahr
1965
Bezug
Februar
Geschoss
3. Geschoss
Energie & Heizung
Warum sehe ich diese Anzeige? – Du siehst diese Anzeige basierend auf Ihrer Navigation auf unserer Website und den Suchkriterien, die du verwendet hast.
Energieausweis: für diesen Gebäudetyp nicht notwendig
Details
Objektbeschreibung
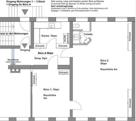
Willkommen zu Ihrer neuen Büroetage im Herzen von Augsburg! Diese elegante Büroimmobilie aus dem Jahr 1965 bietet auf 96 m² (EG) eine ideale Arbeitsumgebung für verschiedenste Geschäftsaktivitäten. Die Fläche ist intelligent aufgeteilt in 2 großzügige und lichtdurchflutete Räume, die eine inspirierende Arbeitsatmosphäre...
Ausstattung
96m² Bürofläche aufgeteilt in 2 großzügige Räume, 1 Küche und 1 WC
* vorhandene Küche wird für die Mietdauer zur Nutzung überlassen
* weitere Möbel können vom aktuellen Mieter abgelöst werden
* 2 Parkplätze je 40€
* attraktive Raumhöhe von 4m
* lichtdurchflutetet Räume
Weitere Informationen
Sonstiges
Bitte haben Sie Verständnis, dass wir Anfragen nur bearbeiten können, wenn diese Ihre vollständige Adresse und Telefonnummer enthalten. Da wir häufig auf Terminen unterwegs sind, bevorzugen wir den Erstkontakt per E-Mail. Unser Telefon ist aufgrund der hohen Auslastung nicht immer besetzt - wir bitten hierfür um...
Anbieter der Immobilie
RAUM_IMMOBILIEN GmbH
Starnberger Weg 62, 82205 Gilching
Online-ID: 2m2dv5r
Referenznummer: SG24262
Finde Angebote wie dieses
Hier geht es zu unserem Impressum, den Allgemeinen Geschäftsbedingungen, den Hinweisen zum Datenschutz und nutzungsbasierter Online-Werbung.