
naturenergie hochrhein AG
Frau Christiane Pörtner
004 ···
Nr. anzeigenDieses Angebot ist Teil des Neubauprojekts
Quartier am Schlosspark
Preise & Kosten
Provision für Käufer
provisionsfrei
Lage
Ihr neues Zuhause befindet sich in der zentrumsnahen Prinz-Fritzi-Allee der rund 22.000 Einwohner großen Stadt Donaueschingen im malerischen Schwarzwald-Baar-Kreis. In der Nähe liegen größere Städte wie Villingen-Schwenningen, Tuttlingen, und das schweizerische Schaffhausen.
Donaueschingen, das seit 2022 den...
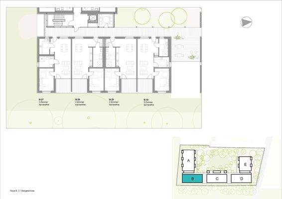
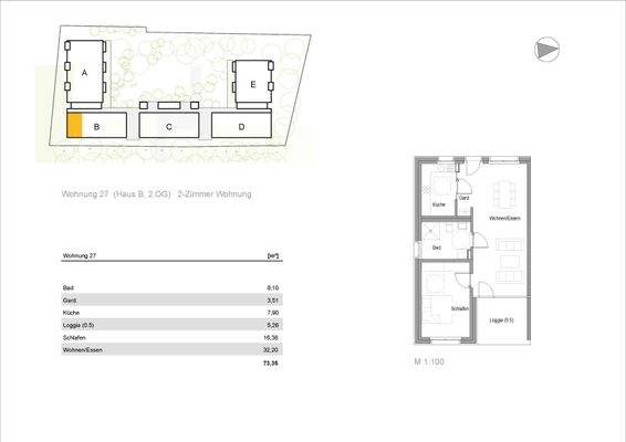
Die Wohnung
Wohnungslage
2. Geschoss
Bezug
2028
Wohnanlage
Das Neubauprojekt
Energie & Heizung
Warum sehe ich diese Anzeige? – Du siehst diese Anzeige basierend auf Ihrer Navigation auf unserer Website und den Suchkriterien, die du verwendet hast.
Energieausweistyp
Bedarfsausweis
Gebäudetyp
Wohngebäude
Wesentliche Energieträger
Fernwärme
Gültigkeit
seit 14.11.2024
Effizienzklasse
A
Endenergiebedarf
49,60 kWh/(m²·a)
Weitere Energiedaten
Energieträger
Fernwärme
Haustyp
KfW 40
Heizungsart
Fußbodenheizung
Details
Objektbeschreibung
Kurzbeschreibung
Komfortable 2 Zimmer Wohnung auf der Südseite im Haus B
15 barrierefreie Wohnungen nach DIN 18040-2
Objekt
Das Quartier am Schlosspark bietet komfortables und selbstbestimmtes Wohnen für Senioren durch barrierefreie oder rollstuhlgerechte Wohnungen, eine Tagespflege und passende...
Ausstattung
Ihre Wohnung liegt im 2. Obergeschoss, Visasvis des wunderschönen Schlossparks von Donaueschingen ist großzügig geschnitten und hat den Standard "barrierefrei nutzbar nach DIN 18040-2". Sie verfügt über 1 Schlafzimmer, Wohnzimmer, Küche und Bad und eine großzügige überdachte Loggia und bietet Ihnen eine Wohnfläche von 73,35...
Weitere Informationen
Sonstiges
Die Tiefgarage des Quartiers bietet Ihnen komfortable Stellplätze mit moderner Ladeinfrastruktur für Ihr Elektroauto. Von dort gelangen Sie bequem und barrierefrei mit dem Aufzug zu Ihrer Wohnung. Zusätzlich steht Ihnen auf Wunsch das naturenergie Car Sharing Fahrzeug zur Verfügung - für flexible und nachhaltige...
Anbieter der Immobilie
naturenergie hochrhein AG
Schönenbergerstr. 10, 79618 Rheinfelden
Online-ID: 2m2e25z
Referenznummer: 48-169
Finde Angebote wie dieses
Hier geht es zu unserem Impressum, den Allgemeinen Geschäftsbedingungen, den Hinweisen zum Datenschutz und nutzungsbasierter Online-Werbung.