

Braun Immobilienkontor
Frau Gabriele Braun
040 ···
Nr. anzeigenPreise & Kosten
Provision für Käufer
Verkäufer und Käufer haben jeweils 3,57% des Kaufpreises inklusive gesetzlicher MwSt. an Braun Immobilienkontor.zu bezahlen
Lage
Wer auf der Suche nach einer Kombination aus weitläufigen Grünflächen, ge-pflegten Parks und gleichzeitig einer hervorragenden Anbindung an die
Hamburger Innenstadt ist, wird sich in Lokstedt wohlfühlen. Lokstedt gehört zum Hamburger Bezirk Eimsbüttel und liegt im Nordwesten der Hansestadt. Die Nähe zu Eppendorf und...
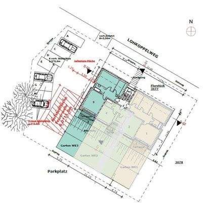
Die Wohnung
Wohnungslage
Erdgeschoss
Bezug
1. März 2026
Wohnanlage
Energie & Heizung
Warum sehe ich diese Anzeige? – Du siehst diese Anzeige basierend auf Ihrer Navigation auf unserer Website und den Suchkriterien, die du verwendet hast.
Energieausweistyp
Bedarfsausweis
Gebäudetyp
Wohngebäude
Baujahr laut Energieausweis
1960
Wesentliche Energieträger
Holzpellets
Gültigkeit
18.11.2013 bis 18.02.2028
Effizienzklasse
B
Endenergiebedarf
73,00 kWh/(m²·a)
Weitere Energiedaten
Energieträger
Pellets
Details
Objektbeschreibung
Objektbeschreibung
Die Immobilie mit Ursprungsbaujahr ca. 1961 wurde im Jahre 2012 um zwei weitere Stockwerke in hochwertiger, energieeffizienter Bauweise aufgestockt. Das Gebäude wurde mit einer Pellet-Heizungsanlage und integrierter zentraler Warmwasserversorgung komplett modernisiert und zu einem...
Weitere Informationen
Anbindung an öffentliche Verke
Mit der U-Bahn-Linie U2 hat Lokstedt eine direkte Anbindung an die Hamburger Innenstadt; zum anderen liegt Lokstedt an der Route der Metrobuslinie 5, der am meisten frequentierten Buslinie Hamburgs. Auch mit der Buslinie 181 ist die City bequem zu erreichen. Autobahnanbindungen zur A7/A23...
Dokumente
Anbieter der Immobilie
Braun Immobilienkontor
Kellinghusenstr. 18, 20249 Hamburg

Online-ID: 2m2gb5n
Referenznummer: 31123112
Finde Angebote wie dieses
Hier geht es zu unserem Impressum, den Allgemeinen Geschäftsbedingungen, den Hinweisen zum Datenschutz und nutzungsbasierter Online-Werbung.