

Kind Immobilien-Kontor
Herr/Frau Jan-Peter Kind
017 ···
Nr. anzeigenPreise & Kosten
Provision für Käufer
3,57% inkl. MwSt. bezogen auf den notariell beurkundeten Kaufpreis
Lage
Die Alte Brühler Straße 147 befindet sich im Kölner Stadtteil Alt-Meschenich am südwestlichen Stadtrand im Stadtbezirk Rodenkirchen - eine besonders ruhige, familienfreundliche Wohnlage mit hohem Freizeitwert. Das Reihenmittelhaus liegt verkehrsberuhigt an einer Anliegerstraße und bietet somit entspanntes Wohnen mit viel...
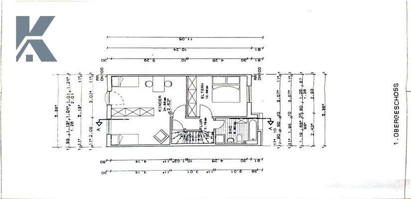
Die Wohnung
Kategorie
Maisonette
Bezug
kurzfristig
Wohnanlage
Energie & Heizung
Warum sehe ich diese Anzeige? – Du siehst diese Anzeige basierend auf Ihrer Navigation auf unserer Website und den Suchkriterien, die du verwendet hast.
Energieausweistyp
Verbrauchsausweis
Gebäudetyp
Wohngebäude
Baujahr laut Energieausweis
1994
Wesentliche Energieträger
GAS
Gültigkeit
bis 29.10.2035
Effizienzklasse
B
Endenergieverbrauch
72,32 kWh/(m²·a)
Weitere Energiedaten
Energieträger
Gas
Heizungsart
Zentralheizung
Details
Objektbeschreibung
Sie suchen eine Wohnung, aber wollen eigentlich keine Eigentümer-Gemeinschaft? Sie wünschen sich Ihr eigenes Zuhause?
In einer ruhigen Anliegerstraße ohne Durchgangsverkehr erwartet Sie dieses gepflegte Reihenmittelhaus aus dem Jahr 1994, das 2016 modernisiert wurde. Es überzeugt durch 126 m² Wohnfläche, 45 m²...
Ausstattung
Echtholzparkett in der ersten und zweiten Etage, glatt verputzte Wände resp. Malerflies, Gastherme aus 2022. Energie-Effizienzklasse B (72,32 kWh/(m²*a), Kamin optional möglich.
Preisinformation
1 Stellplatz
Weitere Informationen
Sonstiges
Im Vergleich zu einer Wohnung: eigenes Grundbuch, kein Bruchteileigentum, Stellplatz direkt vor der Haustür, kein Getrampel von Mitbewohnern über oder unter Ihnen, voll nutzbarer, trockener und beheizbarer Keller nur für Sie!
Die Liegenschaft ist umgehend nach dem Kauf zum Bezug verfügbar.
Nutzen...
Anbieter der Immobilie
Kind Immobilien-Kontor
Hildebertstr. 4, 50858 Köln

Online-ID: 2m2hf5y
Referenznummer: 0534711
Finde Angebote wie dieses
Hier geht es zu unserem Impressum, den Allgemeinen Geschäftsbedingungen, den Hinweisen zum Datenschutz und nutzungsbasierter Online-Werbung.