CHRISTINA WIEBORG Immobilien & Hausverwaltung GmbH

Frau Christina Wieborg

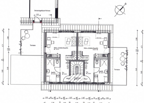
NEUBAUPROJEKT mit 3 Wohneinheiten: Geräumige Erdgeschosswohnung mit Terrasse und Garten! Zwei gemütliche Maisonette-Wohnungen mit Dachterrassen!

€ 510
Kaltmiete zzgl. NK
k.A.
Wohnfläche
2
Zimmer

Der Anbieter dieses Objekts hat gegenüber der AVIV Germany GmbH als Betreiber dieses Online-Marktplatzes erklärt, nicht als Unternehmer im Sinne des § 1 KSchG zu handeln. Die im Verbraucherschutzrecht der Union verankerten Verbraucherrechte (insbesondere Informationspflichten und Rücktritts- bzw. Widerrufsrechte) finden auf den Vertrag zwischen dem Anbieter des Objekts und Ihnen (dem Interessenten) keine Anwendung.

Gewerblicher Anbieter

Der Anbieter dieses Objekts hat gegenüber der AVIV Germany GmbH als Betreiber dieses Online-Marktplatzes erklärt, als Unternehmer im Sinne des § 1 KSchG zu handeln.

AdresseStraße nicht freigegeben
49688 Lastrup 
Auf Karte ansehen

Preise & Kosten

Kaltmiete € 510 Nebenkosten € 70 Heizkosten € 50

Kaution

2 Kaltmieten

Lage

Die Wohnung

Wohnungslage

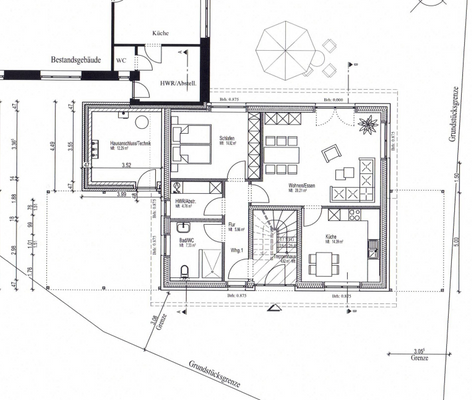
1. Geschoss (Erdgeschoss)

Bezug

15.02.2026

Derzeitige Nutzung

frei

  • Bad mit Dusche
  • Garten, Terrasse
  • Böden: Fliesenboden, Kunststoffboden
  • Fenster: Kunststofffenster
  • Weitere Räume: Abstellraum
  • Anschlüsse: Satellitenanschluss

Wohnanlage

  • Baujahr: 2025
  • Zustand: Neubau
  • 1 Stellplatz

Energie & Heizung

Weitere Energiedaten

Energieträger

Erdwärme

Heizungsart

Zentralheizung

Details

Objektbeschreibung

Moderner Neubau in Holzrahmenbauweise mit 3 Wohnungen in zentraler Lage in unmittelbarer Nähe zu EDEKA, etc.!

Haustiere sind hier leider nicht gewünscht.


ERDGESCHOSS - 75 m² Wfl.- Kaltmiete 650,00 € zzgl. VZ BK und Heizkosten
Schönes, helles Wohn-/Esszimmer mit Zugang zur Terrasse und zum...

Mehr anzeigen

Weitere Informationen

Sonstiges
Der Energieausweis ist in Vorbereitung.

Alle Angaben beruhen auf Auskunft des Vermieters. Hierfür wird trotz eingehender Prüfung keine Gewähr übernommen. Besichtigungen erfolgen nur nach vorheriger Terminabsprache. Irrtum und Zwischenvermietung vorbehalten.

Bitte vollständige Adresse und...

Mehr anzeigen

Anbieter der Immobilie

Partner

CHRISTINA WIEBORG Immobilien & Hausverwaltung GmbH

Alte Heerstraße 29, 49624 Löningen

user

Frau Christina Wieborg

Dein Ansprechpartner

Anbieter-Profil Anbieter-Impressum

Online-ID: 2m2j55k

Finde Angebote wie dieses

imageimageimage

Hier geht es zu unserem Impressum, den Allgemeinen Geschäftsbedingungen, den Hinweisen zum Datenschutz und nutzungsbasierter Online-Werbung.