
Landhaus Wandlitz GmbH & Co. KG
Frau Claudia Mathea
033 ···
Nr. anzeigenPreise & Kosten
Warum sehe ich diese Anzeige? – Du siehst diese Anzeige basierend auf Ihrer Navigation auf unserer Website und den Suchkriterien, die du verwendet hast.
Lage
Sie suchen ein modernes Zuhause im Grünen – mit See fast vor der Haustür? Dann wird Sie diese Zweizimmerwohnung am idyllischen Wandlitzsee begeistern.
Inmitten des begehrten Wohnquartiers Louisenhain erwartet Sie eine helle, freundliche Zweizimmerwohnung im Erdgeschoss des neu errichteten Mehrfamilienhauses „Mutter...
Die Wohnung
Wohnungslage
Erdgeschoss
Bezug
15.02.2026
Derzeitige Nutzung
frei
Wohnanlage
Energie & Heizung
Warum sehe ich diese Anzeige? – Du siehst diese Anzeige basierend auf Ihrer Navigation auf unserer Website und den Suchkriterien, die du verwendet hast.
Energieausweistyp
Bedarfsausweis
Gebäudetyp
Wohngebäude
Wesentliche Energieträger
Gas
Effizienzklasse
A+
Endenergiebedarf
23,40 kWh/(m²·a)
Weitere Energiedaten
Energieträger
Gas, Solar
Heizungsart
Fußbodenheizung, Luft-/Wasser-Wärmepumpe
Details
Weitere Informationen
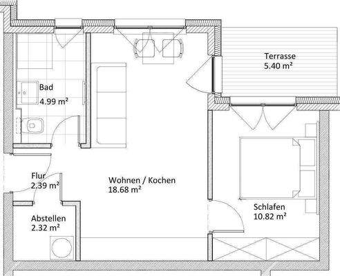
Eckdaten der Wohnung
Diese Wohnung ist wie gemacht für alle, die modernes Wohnen mit einem warmen, einladenden Ambiente verbinden möchten.
• Raumaufteilung
Die durchdachte Grundrissgestaltung sorgt für ein offenes, luftiges Wohngefühl: Eine moderne, offene Küche geht harmonisch in den großzügigen Wohn- und...
Dokumente
Anbieter der Immobilie
Online-ID: 2m2jf5z
Finde Angebote wie dieses
Hier geht es zu unserem Impressum, den Allgemeinen Geschäftsbedingungen, den Hinweisen zum Datenschutz und nutzungsbasierter Online-Werbung.