

EDE INVEST GmbH & Co. KG
Frau Susanne Dettinger-Klemm
+49 ···
Nr. anzeigenPreise & Kosten
Provision für Käufer
2,38 % inkl. MwSt. (2,00 % netto) inkl. MwSt.
Lage
Das Objekt liegt in der charmanten Ortschaft Steinebach, am südlichen Rand von Wörthsee. Diese Lage bietet Ihnen die perfekte Balance zwischen ländlicher Ruhe und städtischer Anbindung.
Die S-Bahn-Station Steinebach ist nur etwa 750 Meter entfernt, was Ihnen eine schnelle und bequeme Verbindung zur Münchner Innenstadt...
Das Haus
Kategorie
Einfamilienhaus
Baujahr
1972
Bezug
ab Juli 2026
Energie & Heizung
Warum sehe ich diese Anzeige? – Du siehst diese Anzeige basierend auf Ihrer Navigation auf unserer Website und den Suchkriterien, die du verwendet hast.
Energieausweistyp
Bedarfsausweis
Gebäudetyp
Wohngebäude
Baujahr laut Energieausweis
1972
Wesentliche Energieträger
OEL
Gültigkeit
bis 27.08.2034
Effizienzklasse
C
Endenergiebedarf
88,60 kWh/(m²·a)
Weitere Energiedaten
Energieträger
Öl
Heizungsart
offener Kamin
Details
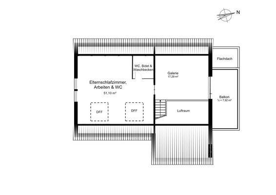
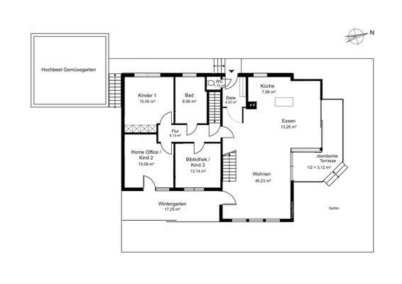
Objektbeschreibung
Dieses freistehende Einfamilienhaus besticht durch seine Südausrichtung und bietet Ihnen eine exklusive Lage mit freiem Blick sowohl auf das malerische Kloster Andechs als auch auf die beeindruckende Zugspitze und Wettersteingebirge. Genießen Sie die idyllische Umgebung und den ungestörten Ausblick von Ihrem neuen Zuhause in...
Ausstattung
- Südausrichtung
- Mit freiem Blick sowohl zur Südseite wie auch zur Nordseite
- Wintergarten
- Eingewachsener pflegeleichter Staudengarten
- Zwei Terrassen: eine mit Süd- und eine mit Ostausrichtung
- Wohnzimmer mit Galerie
- Kachelofen
- 2 volle Bäder
- 2 separate WCs...
Preisinformation
1 Garagenstellplatz, Kaufpreis: 15.000,00 EUR
Weitere Informationen
Sonstiges
Alle in diesem Exposé verwendeten Angaben beruhen auf Informationen von Dritten (z.B. Eigentümer, Hausverwaltung, etc.) und daher freibleibend und ohne jegliche Gewähr. Zahlenangaben sind immer als ca-Angaben zu verstehen. Irrtum, Änderungen, Zwischenverkauf oder Zwischenvermietung bleiben vorbehalten. Die...
Dokumente
Anbieter der Immobilie
EDE INVEST GmbH & Co. KG
Bavariaring 18, 80336 München

Online-ID: 2m2kb5q
Referenznummer: 4565_6
Finde Angebote wie dieses
Hier geht es zu unserem Impressum, den Allgemeinen Geschäftsbedingungen, den Hinweisen zum Datenschutz und nutzungsbasierter Online-Werbung.