

Grossmann & Berger GmbH
Frau Andrea Hagemeister
004 ···
Nr. anzeigenPreise & Kosten
Provision für Käufer
3,57 % inkl. MwSt.
Lage
Dieses ansprechende Reihenendhaus befindet sich in einer ruhigen und dennoch zentral gelegenen Wohngegend von Hamburg. Die Umgebung zeichnet sich durch ihre familienfreundliche Atmosphäre und eine hervorragende Infrastruktur aus.
In unmittelbarer Nähe, nur etwa 220 Meter entfernt, finden Sie einen Kindergarten. Auch...
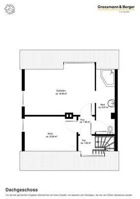
Das Haus
Kategorie
Reihenendhaus
Baujahr
1954
Bezug
01.01.2026
Energie & Heizung
Warum sehe ich diese Anzeige? – Du siehst diese Anzeige basierend auf Ihrer Navigation auf unserer Website und den Suchkriterien, die du verwendet hast.
Energieausweistyp
Bedarfsausweis
Gebäudetyp
Wohngebäude
Baujahr laut Energieausweis
2013
Wesentliche Energieträger
GAS
Gültigkeit
bis 23.07.2025
Effizienzklasse
F
Endenergiebedarf
199,93 kWh/(m²·a)
Weitere Energiedaten
Energieträger
Gas
Heizungsart
Zentralheizung
Details
Objektbeschreibung
Willkommen in Ihrem neuen Zuhause in einem charmanten Reihenendhaus im begehrten Hamburger Stadtteil Bramfeld! Dieses moderne Haus, ursprünglich 1954 erbaut und umfassend modernisiert, bietet einen schönen Lebensraum.
Auf einem real geteilten Grundstück von ca. 247 m² präsentiert sich das Haus mit einem durchdachten...
Ausstattung
Entdecken Sie die außergewöhnliche Ausstattung dieser Immobilie, die Komfort und Funktionalität aufs Beste vereint. Das Objekt bietet Ihnen ein erneuertes Dach, ein Wärmedämmverbundsystem sowie Fenster aus dem Jahre 2006. Sämtliche Fenster, mit Ausnahme der Gaubenfenster im Dachgeschoss, verfügen über manuell zu bedienende...
Weitere Informationen
Stichworte
Nutzfläche: 22,87 m², Anzahl der Schlafzimmer: 3, Anzahl der Badezimmer: 2, Anzahl Terrassen: 1, Bundesland: Hamburg, modernisiert, Distanz zum Kindergarten: 0.29, Distanz zur Grundschule: 1.40, Distanz zur Realschule: 1.30, Distanz zur nächsten Einkaufsmöglichkeit: 0.45, Distanz zum Gymnasium: 1.50, Distanz zum...
Anbieter der Immobilie

Online-ID: 2m2kv52
Referenznummer: WB 5649
Finde Angebote wie dieses
Hier geht es zu unserem Impressum, den Allgemeinen Geschäftsbedingungen, den Hinweisen zum Datenschutz und nutzungsbasierter Online-Werbung.