

Gruttmann Immobilien GmbH
Frau Britta C. Gruttmann
030 ···
Nr. anzeigenPreise & Kosten
Provision für Käufer
Gemäß der gesetzlichen Regelung zur Teilung der Maklercourtage beträgt die Provision 3,57% des Kaufpreises inklusive 19% MwSt. jeweils in gleicher Höhe für die Verkäuferseite sowie für die Käuferseite.
Lage
Der Bezirk Reinickendorf ist geprägt von einer großen Vielfalt sehr unterschiedlicher Wohngebiete, da sich das Straßenbild bis in die 60er Jahre hinein in mehreren Bauphasen entwickelt hat.
Die Wohnung befindet sich im Ortsteil Märkisches Viertel. Das Stadtumbaugebiet Märkisches Viertel umfasst die...
Die Wohnung
Wohnungslage
7. Geschoss
Bezug
frei
Derzeitige Nutzung
frei
Wohnanlage
Energie & Heizung
Warum sehe ich diese Anzeige? – Du siehst diese Anzeige basierend auf Ihrer Navigation auf unserer Website und den Suchkriterien, die du verwendet hast.
Energieausweistyp
Verbrauchsausweis
Gebäudetyp
Wohngebäude
Baujahr laut Energieausweis
2017
Wesentliche Energieträger
Fernwärme
Gültigkeit
18.10.2018 bis 17.10.2028
Effizienzklasse
C
Endenergieverbrauch
89,00 kWh/(m²·a)
Details
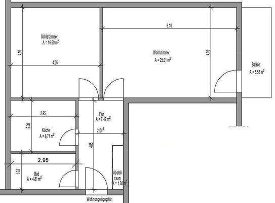
Objektbeschreibung
Die helle und top gepflegte Wohnung befindet sich im 7. Obergeschoss einer Wohnanlage aus dem Jahr 1964 und ist bequem mit dem Aufzug zu erreichen.
Eine Wohnfläche von ca. 65 m² verteilt sich auf einen Flur, eine Küche mit einer modernen Einbauküche, ein Schlafzimmer, ein Badezimmer mit ebenerdiger Dusche (erneuert in...
Anbieter der Immobilie

Online-ID: 2m2ls5j
Referenznummer: VK-22019 y
Finde Angebote wie dieses
Hier geht es zu unserem Impressum, den Allgemeinen Geschäftsbedingungen, den Hinweisen zum Datenschutz und nutzungsbasierter Online-Werbung.