
Perfekt Immo GmbH
Herr Lukas Frühstück
+43 ···
Nr. anzeigenPreise & Kosten
Provision für Käufer
Bitte beachte, das Angebot kann bei Vertragsabschluss die Zahlung einer Provision beinhalten. Weitere Informationen erhältst Du vom Anbieter.
Lage
Nur wenige Schritte trennen Sie vom Bodensee und dem charmanten Militärbad "Mili". Das Stadtzentrum von Bregenz ist in Sichtweite, und hinter dem Haus beginnt der Weg in die Berge - eine perfekte Verbindung von Stadt, See und Natur.
Die Liegenschaft befindet sich unmittelbar an der Stadtgrenze zu Bregenz und zählt zwar...
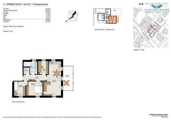
Die Wohnung
Wohnanlage
Energie & Heizung
Warum sehe ich diese Anzeige? – Du siehst diese Anzeige basierend auf Ihrer Navigation auf unserer Website und den Suchkriterien, die du verwendet hast.
Heizwärmebedarf (HWB)
44,00 kWh/(m²·a)
Gesamtenergieeffizienz (fGEE)
0,79
Weitere Energiedaten
Energieträger
Erdwärme
Heizungsart
Zentralheizung
Details
Objektbeschreibung
Das Bauvorhaben Am Tannenbach 23 in Lochau besteht aus insgesamt 8 Wohneinheiten und ausreichend Stellplätzen. Es entstehen 2-, 3- und 4-Zimmerwohnungen mit Wohnflächen von etwa 43 m² bis 130 m² - hier ist für jeden etwas dabei. Im Rahmen der Entwicklung wird das Bestandsgebäude...
Weitere Informationen
Stichworte
Carport vorhanden, Stellplatz vorhanden, Fahrradraum, Anzahl Balkone: 1, Balkon-Terrassen-Fläche: 14,85 m², Bundesland: Vorarlberg
Anbieter der Immobilie
Perfekt Immo GmbH
Siedlung 31, 6463 KARRÖSTEN
Online-ID: 2m2lt5r
Referenznummer: OBGC2025121813371001033ac57f9ca
Finde Angebote wie dieses
Günstige Immobilienfinanzierung einfach online berechnen
Persönliches Angebot berechnenWarum sehe ich diese Werbung? – Du siehst diese Werbung basierend auf Deiner Navigation auf unserer Website und der von Dir verwendeten Suchkriterien.
Diese Werbung wird bezahlt von durchblicker
Werbung melden
Hier geht es zu unserem Impressum, den Allgemeinen Geschäftsbedingungen, den Hinweisen zum Datenschutz und nutzungsbasierter Online-Werbung.