
Vonovia Kundenservice GmbH
Herr Schauer
017 ···
Nr. anzeigenPreise & Kosten
in Warmmiete enthalten
Kaution
1.473,69
Warum sehe ich diese Anzeige? – Du siehst diese Anzeige basierend auf Ihrer Navigation auf unserer Website und den Suchkriterien, die du verwendet hast.
Lage
Sie wohnen im Stadtteil Südvorstadt-West - fußläufig können Sie die Altstadt bequem in 20 Minuten erreichen. Geschäfte des täglichen Bedarfs, wie Lebensmittelmärkte, Bäcker, Apotheken etc. sind nur wenige Gehminuten entfernt - ebenso wie der Hauptbahnhof. Kitas, Grund- und Oberschule/Gymnasium befinden sich ebenfalls in der...
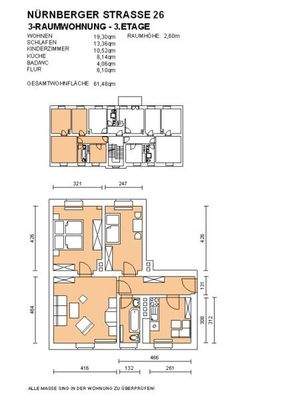
Die Wohnung
Wohnungslage
2. Geschoss
Bezug
22.12.2025
Wohnanlage
Energie & Heizung
Warum sehe ich diese Anzeige? – Du siehst diese Anzeige basierend auf Ihrer Navigation auf unserer Website und den Suchkriterien, die du verwendet hast.
Energieausweistyp
Bedarfsausweis
Gebäudetyp
Wohngebäude
Baujahr laut Energieausweis
1957
Gültigkeit
bis 17.02.2032
Effizienzklasse
E
Endenergiebedarf
135,00 kWh/(m²·a)
Weitere Energiedaten
Energieträger
Fernwärme
Heizungsart
Zentralheizung
Details
Objektbeschreibung
Kontakt unter Nico.Schauer@vonovia.de
Ausstattung
Bad mit Fenster; Boden in Holzoptik; tapeziert; Zentralheizung; Fernwärme; Isolierverglasung; Mieterkeller; Fahrradabstellraum; Gegensprechanlage; Spielplatz; Mehrfamilienhaus; Badewanne eingemauert;
Weitere Informationen
Sonstiges
Hinweise darüber, wie die Vonovia Ihre personenbezogenen Daten als Interessent verarbeitet, erhalten Sie unter www.vonovia.com/datenschutz. Alle Angaben in diesem Exposé wurden sorgfältig und so vollständig wie möglich gemacht. Gleichwohl kann das Vorhandensein von Fehlern nicht ausgeschlossen werden. Die Angaben...
Anbieter der Immobilie
Vonovia Kundenservice GmbH
Universitätsstr. 133, 44803 Bochum
Online-ID: 2m2pj5p
Referenznummer: 82-1063230006
Finde Angebote wie dieses
Hier geht es zu unserem Impressum, den Allgemeinen Geschäftsbedingungen, den Hinweisen zum Datenschutz und nutzungsbasierter Online-Werbung.