
roomers immobilien GmbH & Co. KG
Herrn Andreas Engelhardt
051 ···
Nr. anzeigenPreise & Kosten
Lage
Das Haus liegt in einer ruhigen und familienfreundlichen
Wohngegend im Ortsteil Engelbostel in Langenhagen. Die
Umgebung ist geprägt von gepflegten Einfamilienhauses,
Grünflächen und einer sehr guten Infrastruktur.
Verkehrsanbindung
Schnelle Anbindung an Hannover durch gut erreichbare
Autobahnen und den...
Das Haus
Kategorie
Doppelhaushälfte
Baujahr
2025
Bezug
sofort
Energie & Heizung
Warum sehe ich diese Anzeige? – Du siehst diese Anzeige basierend auf Ihrer Navigation auf unserer Website und den Suchkriterien, die du verwendet hast.
Weitere Energiedaten
Energieträger
Elektro
Heizungsart
Fußbodenheizung, Luft-/Wasser-Wärmepumpe
Details
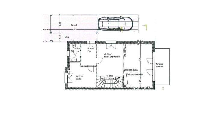
Objektbeschreibung
Diese exklusive Doppelhaushälfte bietet modernen
Wohnkomfort auf höhchstem Niveau. Mit einer Gesamtfläche
von 180 m² auf drei Ebenen und einem 374 m² großen
Grundstück eignet sich dieses Haus perfekt für Familien
oder Paare, die großzügiges Wohnen schätzen.
Das Gebäude ist im Juni 2025 fertiggestellt und...
Ausstattung
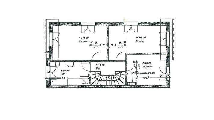
Erdgeschoss: 61,70m²
- Großzügiger Eingang/ Entree
- Repräsentatives offenes Wohnzimmer
- Offener Küchen/ Essbereich
- Büro/ Gästezimmer
- Gäste-WC
- HWR
- Betontreppe mit Eichenparkettauflage und rahmenlosem
Glasgeländer
- Hochwertiges Parkett in den Wohnräumen
- Feinsteinzeugfliesen 120cm x...
Anbieter der Immobilie
roomers immobilien GmbH & Co. KG
Marktstraße 62, 31303 Burgdorf
Online-ID: 2m2qu5z
Finde Angebote wie dieses
Hier geht es zu unserem Impressum, den Allgemeinen Geschäftsbedingungen, den Hinweisen zum Datenschutz und nutzungsbasierter Online-Werbung.