
DIVARES GmbH & Co. KG
004 ···
Nr. anzeigenPreise & Kosten
Kaution
1.312,00
Warum sehe ich diese Anzeige? – Du siehst diese Anzeige basierend auf Ihrer Navigation auf unserer Website und den Suchkriterien, die du verwendet hast.
Lage
+ lebendiges und kulturell vielfältiges Umfeld
+ sehr gute Anbindung an den ÖPNV
+ fußläufig verschiedenste Einkaufsmöglichkeiten
Die Wohnung
Wohnungslage
1. Geschoss
Bezug
01.03.2026
Wohnanlage
Energie & Heizung
Warum sehe ich diese Anzeige? – Du siehst diese Anzeige basierend auf Ihrer Navigation auf unserer Website und den Suchkriterien, die du verwendet hast.
Energieausweistyp
Verbrauchsausweis
Gebäudetyp
Wohngebäude
Wesentliche Energieträger
ERDGAS_SCHWER
Gültigkeit
bis 07.09.2028
Effizienzklasse
D
Endenergieverbrauch
115,00 kWh/(m²·a)
Weitere Energiedaten
Energieträger
Gas
Heizungsart
Zentralheizung
Details
Objektbeschreibung
+ sanierter Altbau in einer Nebenstraße der Dresdner Neustadt
Leider können wir Ihnen für dieses Angebot noch keine Innenfotos zur Verfügung stellen, da diese Wohnung aktuell noch vermietet ist. Wir bitten Sie hierfür um Verständnis.
Ausstattung
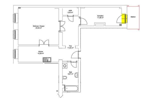
+ 2-Raum-Wohnung im 1.OG
+ Balkon
+ *Einbauküche kann vom Vormieter erworben werden
+ Laminat
+ Bad mit Wanne
+ WM-Anschluss im Bad
+ Abstellraum
+ Kellerabteil
Weitere Informationen
Sonstiges
Es liegt ein Energieverbrauchsausweis vor.
Dieser ist gültig bis 7.9.2028.
Endenergieverbrauch beträgt 115.00 kwh/(m²*a).
Wesentlicher Energieträger der Heizung ist Erdgas schwer.
Die Energieeffizienzklasse ist D.
Kenndaten EnEV 2014: Baujahr: ca. 1910, Sanierung/Modernisierung: ca. 1995, 115...
Anbieter der Immobilie
Online-ID: 2m2v25t
Referenznummer: 11846
Finde Angebote wie dieses
Hier geht es zu unserem Impressum, den Allgemeinen Geschäftsbedingungen, den Hinweisen zum Datenschutz und nutzungsbasierter Online-Werbung.