
Evernest GmbH
Bernd Breuer
+49 ···
Nr. anzeigenPreise & Kosten
Provision für Käufer
3.57 inkl. MwSt.
Bei Abschluss eines notariellen Kaufvertrages ist eine Käuferprovision vom Käufer in Höhe von 3.57 % inkl. MwSt. aus dem Kaufpreis fällig.
Lage
Eingebettet in eine ruhige Sackgasse mit Wendehammer präsentiert sich das Haus in einem harmonischen, familienfreundlichen Wohngebiet. Der nur wenige Schritte entfernte S-Bahnhof Köln-Wahn verbindet ruhiges Wohnen mit bester Mobilität - ob in die Kölner Innenstadt, ins Umland oder direkt zum Flughafen. Trotz der zentralen...
Das Haus
Kategorie
Doppelhaushälfte
Baujahr
2010
Energie & Heizung
Warum sehe ich diese Anzeige? – Du siehst diese Anzeige basierend auf Ihrer Navigation auf unserer Website und den Suchkriterien, die du verwendet hast.
Energieausweistyp
Bedarfsausweis
Gebäudetyp
Wohngebäude
Effizienzklasse
A+
Endenergiebedarf
12,30 kWh/(m²·a)
Weitere Energiedaten
Energieträger
Elektro, Erdwärme
Details
Objektbeschreibung
Diese 2010 erbaute, energieeffiziente Doppelhaushälfte im Passivhaus-Standard verbindet modernen Wohnkomfort mit höchster Nachhaltigkeit. Auf ca. 168 m² Wohnfläche und einem ca. 350 m² großen Grundstück bietet sie ideale Voraussetzungen für Familien, die Wert auf Komfort, niedrige Betriebskosten und eine sehr gute...
Ausstattung
2020 umfassend renoviert, letzte Renovierung 2025
Hoch wärmegedämmte Fassade und überwiegend bodentiefe Fenster mit Dreifachverglasung
Erdwärme-Wärmepumpe mit Erdkollektor
Kontrollierte Wohnraumlüftung mit Wärmerückgewinnung
Fußbodenheizung im gesamten Wohnbereich
Thermische Solaranlage zur Unterstützung von...
Weitere Informationen
Stichworte
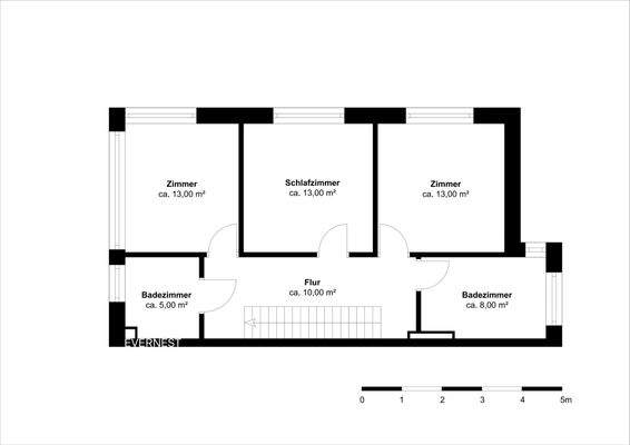
Carport vorhanden, Nutzfläche: 209,00 m², Anzahl der Schlafzimmer: 4, Anzahl der Badezimmer: 1, Anzahl der separaten WCs: 1, Anzahl Terrassen: 1, Gartenfläche: 247,00 m², 3 Etagen
Anbieter der Immobilie
Online-ID: 2m2v95v
Referenznummer: L-RCT4FCC
Finde Angebote wie dieses
Hier geht es zu unserem Impressum, den Allgemeinen Geschäftsbedingungen, den Hinweisen zum Datenschutz und nutzungsbasierter Online-Werbung.