
Garant Immobilien und Vermittlung von Finanzdienstleistungen e.K.
Frau Waltraud Rieger
+49 ···
Nr. anzeigenPreise & Kosten
Kaution
3.690,00
Warum sehe ich diese Anzeige? – Du siehst diese Anzeige basierend auf Ihrer Navigation auf unserer Website und den Suchkriterien, die du verwendet hast.
Lage
1A-Lage
Rathsberg zählt zu den Topadressen von Erlangen. Die landschaftliche Umgebung, exklusive Wohnbebauung sowie die in nur ca. 1 km zu erreichende Erlanger Innenstadt sind einige der Gründe. Die Wohnung liegt in absolut ruhiger Randlage am Ende einer kleinen Sackgasse. Für die Mobilität steht der Stadtbus zur...
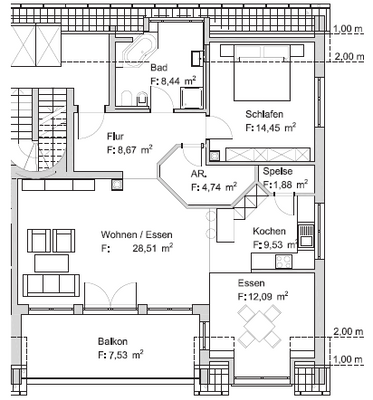
Die Wohnung
Wohnungslage
1. Geschoss (Dachgeschoss)
Bezug
sofort verfügbar
Wohnanlage
Energie & Heizung
Warum sehe ich diese Anzeige? – Du siehst diese Anzeige basierend auf Ihrer Navigation auf unserer Website und den Suchkriterien, die du verwendet hast.
Energieausweistyp
Verbrauchsausweis
Gebäudetyp
Wohngebäude
Baujahr laut Energieausweis
2013
Gültigkeit
09.12.2016 bis 08.12.2026
Effizienzklasse
B
Endenergieverbrauch
72,30 kWh/(m²·a) - Warmwasser enthalten
Weitere Energiedaten
Energieträger
Pellets
Details
Objektbeschreibung
Die Wohnung liegt am Ende einer Sackgasse in einem repräsentativen 3-Fam.-Architekten-Wohnhaus in Rathsberg. Über die mit Terracotta-Fliesen ausgelegte Treppe wird die 1. Etage erreicht. Nach der großzügigen Diele werden der offen gestaltete Wohn-Essbereich sowie die Küche betreten. Diese äußerst beliebte Raumaufteilung...
Ausstattung
Pelletsheizung (2012) mit Solarthermie zur Heizungs- und Warmwasserunterstützung
Fußbodenheizung
Elektr. Rollos in der kompletten Wohnung
Einbauküche
Spots in Küche und Bad
Bodenbeläge Fliesen
Kaminofen
Markise
Waschmaschinen-Anschluß
Fliesen und Granit
Satellitenantennne
Internet: 100...
Preisinformation
1 Stellplatz, Miete: 40,00 EUR
Anbieter der Immobilie
Garant Immobilien und Vermittlung von Finanzdienstleistungen e.K.
Weisendorfer Str. 2a, 91056 Erlangen
Online-ID: 2m2x95s
Referenznummer: 300/429
Finde Angebote wie dieses
Hier geht es zu unserem Impressum, den Allgemeinen Geschäftsbedingungen, den Hinweisen zum Datenschutz und nutzungsbasierter Online-Werbung.