
4M Immobilien & Consulting GmbH & Co. KG
Frau Sabrina Schmidt
nul ···
Nr. anzeigenPreise & Kosten
Provision für Käufer
3.00 % zzgl. MwSt.
Das Haus
Kategorie
Einfamilienhaus
Baujahr
ca. 2018
Bezug
sofort
Energie & Heizung
Warum sehe ich diese Anzeige? – Du siehst diese Anzeige basierend auf Ihrer Navigation auf unserer Website und den Suchkriterien, die du verwendet hast.
Weitere Energiedaten
Haustyp
Holzhaus
Heizungsart
Zentralheizung
Details
Objektbeschreibung
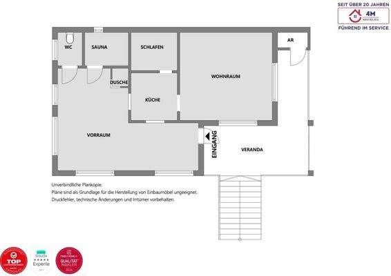
?? Autark leben im Stelzenhaus beim Wasser - Ferienhaus bei Tulln auf Pachtgrund zu verkaufen!
?? 3425 Langenlebarn, Nähe Badesee Linkes Donauufer - FKK-Bereich
Dieses charmante Stelzenhaus befindet sich im FKK-Areal der Tullner Au und bietet Naturliebhaberinnen und Naturliebhabern eine einzigartige...
Weitere Informationen
Stichworte
Anzahl der separaten WCs: 1, Bundesland: Niederösterreich, Stadtrandlage, Lastenfrei
Anbieter der Immobilie
4M Immobilien & Consulting GmbH & Co. KG
Margaretenstraße 99, 1050 WIEN
Online-ID: 2m2xh5p
Referenznummer: 2483/22173
Finde Angebote wie dieses
Günstige Immobilienfinanzierung einfach online berechnen
Persönliches Angebot berechnenWarum sehe ich diese Werbung? – Du siehst diese Werbung basierend auf Deiner Navigation auf unserer Website und der von Dir verwendeten Suchkriterien.
Diese Werbung wird bezahlt von durchblicker
Werbung melden
Hier geht es zu unserem Impressum, den Allgemeinen Geschäftsbedingungen, den Hinweisen zum Datenschutz und nutzungsbasierter Online-Werbung.