
allkauf haus GmbH
Herr Vitali Stettinger
+49 ···
Nr. anzeigenPreise & Kosten
Provision für Käufer
provisionsfrei
Lage
Dieses ansprechende Objekt befindet sich in Nidderau Windecken, einem ruhigen Wohngebiet, das ideal für Familien ist. In unmittelbarer Nähe finden Sie eine Grundschule sowie eine angenehme Wohngegend, die ein hohes Maß an Lebensqualität bietet.
Das Haus
Kategorie
Doppelhaushälfte
Baujahr
2027
Energie & Heizung
Warum sehe ich diese Anzeige? – Du siehst diese Anzeige basierend auf Ihrer Navigation auf unserer Website und den Suchkriterien, die du verwendet hast.
Weitere Energiedaten
Haustyp
KfW 40
Heizungsart
Fußbodenheizung, Luft-/Wasser-Wärmepumpe
Details
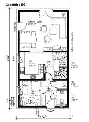
Objektbeschreibung
Willkommen in Ihrer neuen Doppelhaushälfte, die individuell nach Ihren Wünschen und Vorstellungen projektiert werden kann. Genießen Sie großzügige 189 m² Wohnfläche auf 3 Etagen, verteilt auf 6 Zimmer, darunter 5 Schlafzimmer und ein modern gestaltetes Badezimmer mit Dusche, Wanne und Fenster. Diese durchdachte Planung bietet...
Ausstattung
Die gehobene Ausstattung umfasst stilvolle Bodenbeläge aus Fliesen und Laminat. Fliesen sind nicht nur pflegeleicht und langlebig, sondern verleihen auch einen modernen Look. Laminat hingegen ist bekannt für seine einfache Verlegung und warme Ausstrahlung. Die innovative Wärmepumpe sorgt für eine effiziente Beheizung und ist...
Weitere Informationen
Sonstiges
allkauf bietet Ihnen maximale Sicherheit, kurze Lieferzeiten und garantierte Fertigstellung. Um Ihnen die Entscheidung zu erleichtern, erhalten Sie beim Kauf Ihres Hauses zusätzliche Serviceleistungen, die Sie bei Ihren Bauvorhaben unterstützen. Zu allen Häusern gehört:
- Energieeffizienzwand
-...
Anbieter der Immobilie
allkauf haus GmbH
Ludwig Erhard Str. 2, 68162 Bad Vilbel
Online-ID: 2m2y45r
Referenznummer: 3019-13-kw51-61564 Double 11 DG SF MKK
Finde Angebote wie dieses
Hier geht es zu unserem Impressum, den Allgemeinen Geschäftsbedingungen, den Hinweisen zum Datenschutz und nutzungsbasierter Online-Werbung.