

Viva Immobilia
Frau Juliane Urlic
021 ···
Nr. anzeigenPreise & Kosten
zzgl. Nebenkosten
in Warmmiete enthalten
Provision für Mieter
2 Nettokaltmieten zzgl. gesetzl. MwSt.
Warum sehe ich diese Anzeige? – Du siehst diese Anzeige basierend auf Ihrer Navigation auf unserer Website und den Suchkriterien, die du verwendet hast.
Die Ladenfläche
Baujahr
1960
Erdgeschoss
Energie & Heizung
Warum sehe ich diese Anzeige? – Du siehst diese Anzeige basierend auf Ihrer Navigation auf unserer Website und den Suchkriterien, die du verwendet hast.
Weitere Energiedaten
Energieträger
Öl
Heizungsart
Zentralheizung
Details
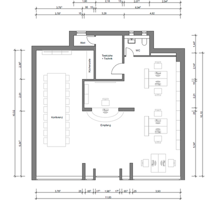
Objektbeschreibung
ERFOLGREICH ARBEITEN AM ZOOPARK
Willkommen in einem einzigartigen, repräsentativen Ladenlokal/Büro in bester Lage direkt gegenüber vom Zoopark in Düsseldorf-Düsseltal. Diese Gewerbeeinheit verbindet stilvolles Design mit moderner Technik und bietet Ihnen eine exklusive Arbeits- oder Verkaufsfläche, die keine Wünsche...
Ausstattung
- große Schaufensterfront
- Granitfensterbänke
- hochwertiges Echtholzparkett
- neue Elektrik mit modernem Verteilerkasten
- aufwendiges Lichtkonzept
- neue IT-Infrastruktur: mit umfangreichen Serverschrank mit BUS/EDV-Verkabelung KAT7
- Surround-System mit Sonos-Boxen
- elegante Wandflachheizkörper
-...
Weitere Informationen
Sonstiges
Wir hoffen, dass wir Ihr Interesse wecken konnten und freuen uns auf Ihre Kontaktaufnahme. Bonität vorausgesetzt. Ihr VIVA IMMOBILIA Team!
VERTRAULICHKEIT & WEITERVERMARKTUNG
Dieses Angebot ist vertraulich und nicht für eine eventuelle Weitervermarktung bestimmt. Dieses Angebot ist ausschließlich...
Anbieter der Immobilie

Online-ID: 2m2y85z
Referenznummer: VIVA-504
Finde Angebote wie dieses
Hier geht es zu unserem Impressum, den Allgemeinen Geschäftsbedingungen, den Hinweisen zum Datenschutz und nutzungsbasierter Online-Werbung.