
Sparda Immobilien GmbH
Herr Kai Apel
004 ···
Nr. anzeigenPreise & Kosten
Provision für Käufer
3,57 % inkl. MwSt.
Lage
Rensefeld, ein malerischer Ortsteil der Kurstadt Bad Schwartau im Kreis Ostholstein (Schleswig-Holstein), verkörpert ländlich-idyllisches Flair inmitten der Ostsee-Region. Der Name leitet sich vom slawischen "Ranislavfeld" ab und spiegelt die slawische Siedlungsgeschichte wider. Ursprünglich eigenständige Gemeinde seit dem...
Die Wohnung
Wohnanlage
Energie & Heizung
Warum sehe ich diese Anzeige? – Du siehst diese Anzeige basierend auf Ihrer Navigation auf unserer Website und den Suchkriterien, die du verwendet hast.
Energieausweistyp
Verbrauchsausweis
Gebäudetyp
Wohngebäude
Baujahr laut Energieausweis
2009
Wesentliche Energieträger
GAS
Gültigkeit
bis 01.12.2035
Effizienzklasse
B
Endenergieverbrauch
50,20 kWh/(m²·a)
Weitere Energiedaten
Energieträger
Gas
Heizungsart
Zentralheizung
Details
Objektbeschreibung
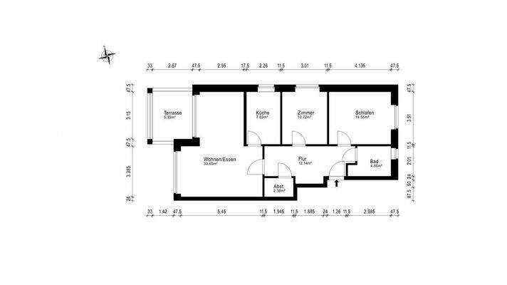
Mit dieser Immobilie bieten wir Ihnen eine zeitgemäße 3-Zimmer-Erdgeschosswohnung auf Eigenland an. Die Wohnung verfügt über ca. 88 m² Wohnfläche und eine großzügige, überdachte Terrasse.
Das Wohngebäude umfasst insgesamt zehn Wohneinheiten, die sich auf zwei Hauseingänge verteilen. Die angebotene Wohnung liegt im hinteren...
Ausstattung
Fenster:
Kunststofffenster - doppelt verglast
Heizung und Warmwasser:
Gas-Zentralheizung mit Solarthermie Unterstützung
Bodenbeläge:
Echtholz-Fertigparkett, Fliesen
Küche:
Einbauküche gepflegt
Bäder:
Duschbad mit Fenster
Besonderheiten:
eingeschränkt barrierefrei...
Preisinformation
1 Stellplatz
Weitere Informationen
Stichworte
Stellplatz vorhanden, Fahrradraum, Nutzfläche: 5,39 m², Anzahl der Schlafzimmer: 2, Anzahl der Badezimmer: 1, Anzahl Terrassen: 1, Balkon-Terrassen-Fläche: 5,39 m², Anzahl der Wohneinheiten: 10, 3 Etagen
Anbieter der Immobilie
Sparda Immobilien GmbH
Beim Strohhause 27, 20097 Hamburg
Online-ID: 2m2yj5n
Referenznummer: KA_9561
Finde Angebote wie dieses
Hier geht es zu unserem Impressum, den Allgemeinen Geschäftsbedingungen, den Hinweisen zum Datenschutz und nutzungsbasierter Online-Werbung.