
TPM GmbH
089 ···
Nr. anzeigenPreise & Kosten
Provision für Mieter
provisionsfrei
Warum sehe ich diese Anzeige? – Du siehst diese Anzeige basierend auf Ihrer Navigation auf unserer Website und den Suchkriterien, die du verwendet hast.
Lage
Die Einzelhandelsfläche befindet sich in einem belebten Stadtteil der historischen Stadt Oldenburg. Das Viertel zeichnet sich durch eine Vielzahl von Geschäften, Restaurants und Cafés aus, die eine lebendige Atmosphäre schaffen. In unmittelbarer Nähe finden sich auch öffentliche Verkehrsmittel und Parkmöglichkeiten, die eine...
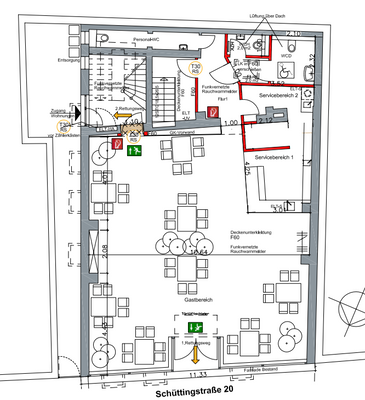
Die Ladenfläche
Kategorie
Verkaufsfläche
Baujahr
1909
Bezug
sofort
Energie & Heizung
Warum sehe ich diese Anzeige? – Du siehst diese Anzeige basierend auf Ihrer Navigation auf unserer Website und den Suchkriterien, die du verwendet hast.
Wärme
Energieausweistyp
Bedarfsausweis
Gebäudetyp
Nicht-Wohngebäude
Endenergiebedarf (Wärme)
985,20 kWh/(m²·a)
Details
Objektbeschreibung
Das Gebäude befindet sich in einem neuwertigen Zustand und verfügt über eine Gas-Heizung. Zudem ist die Immobilie barrierefrei zugänglich. Der Keller bietet eine Fläche von 70 m² und bietet somit zusätzlichen Stauraum.
Die Räumlichkeiten der Einzelhandelsflächen sind großzügig gestaltet und bieten vielfältige...
Ausstattung
Die angebotene Immobilie befindet sich in einem sehr gepflegten Zustand.
Im Zuge der Renovierung wurden verschiedene Modernisierungsmaßnahmen durchgeführt. Die Fläche verfügt über ein fest installiertes Klimagerät, das ganzjährig für ein angenehmes Raumklima sorgt. Insgesamt präsentiert sich die Immobilie in einem...
Weitere Informationen
Sonstiges
Bei Interesse können Sie sich wegen einem Besichtigungstermin mit uns in Verbindung setzen.
Stichworte
Gesamtfläche: 220,00 m²
Anbieter der Immobilie
Online-ID: 2m2yn5f
Referenznummer: 5659#XZkCM
Finde Angebote wie dieses
Hier geht es zu unserem Impressum, den Allgemeinen Geschäftsbedingungen, den Hinweisen zum Datenschutz und nutzungsbasierter Online-Werbung.