

Layer Immobilien & Bau
Frau Elena Schmidt
082 ···
Nr. anzeigenPreise & Kosten
Provision für Käufer
3,57 % inkl. gez. MwSt. inkl. MwSt.
Lage
Gablingen ist eine idyllische Gemeinde im Landkreis Augsburg mit rund 4.800 Einwohnern und fünf Gemeindeteilen. Die angebotene Immobilie befindet sich in Gablingen-Siedlung. Wer Ruhe und Naturnähe sucht, ist hier genau richtig, denn Gablingen verbindet ländlichen Charme mit moderner...
Die Immobilie
Zu diesem Angebot wurden vom Anbieter keine weiteren Daten hinterlegt. Für weitere Informationen bitte den Anbieter kontaktieren.
Nach Informationen fragenDetails
Objektbeschreibung
Hier bietet sich eine seltene Gelegenheit für Investoren, Projektentwickler oder Bauherren: Zum Verkauf steht eine Bestandsimmobilie in attraktiver Lage, die sich aufgrund ihres Zustands ideal für einen Neubau eignet. Das bestehende Gebäude ist sanierungsbedürftig und bietet somit die perfekte Basis für eine umfassende...
Ausstattung
Hier sind die Details der Immobilie im Überblick:
Bestand:
---------------------------------------------------------------------
. zwei unterkellerte Garagen
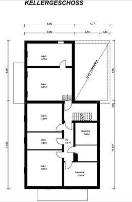
Kellergeschoss:
. Vollständig unterkellert, ca. 134 m²
. Kellerhöhe: ca. 2,45 m
. Heizraum - Ölheizung
...
Preisinformation
8 Stellplätze
Weitere Informationen
Sonstiges
Wesentlicher Energieträger der Heizung ist Öl.
Wir freuen uns auf Ihre Anfrage. Gerne lassen wir Ihnen weitere Informationen zu dieser Immobilie zukommen. Füllen Sie hierzu bitte das Kontaktformular vollständig aus. Frau Elena Schmidt setzt sich gerne mit Ihnen in Verbindung.
Damit wir Ihnen sofort...
Anbieter der Immobilie

Online-ID: 2m2yz57
Referenznummer: ES3661G
Finde Angebote wie dieses
Hier geht es zu unserem Impressum, den Allgemeinen Geschäftsbedingungen, den Hinweisen zum Datenschutz und nutzungsbasierter Online-Werbung.