

Ostsächsische Sparkasse Dresden
Herr Martin Tracz
035 ···
Nr. anzeigenPreise & Kosten
Provision für Käufer
3,57 % inkl. MwSt.
Lage
Die Immobilie befindet sich in Radebeul-Wahnsdorf, einem der begehrtesten Ortsteile Radebeuls, der für seine ruhige, grüne Umgebung und gleichzeitig gute Anbindung bekannt ist. Hier wohnen Sie naturnah am Rande der Lößnitzhänge und dennoch mit optimaler Erreichbarkeit zu allen wichtigen Zielen der Region.
Nur wenige...
Das Haus
Kategorie
Doppelhaushälfte
Baujahr
1938
Bezug
mit Verkauf
Energie & Heizung
Warum sehe ich diese Anzeige? – Du siehst diese Anzeige basierend auf Ihrer Navigation auf unserer Website und den Suchkriterien, die du verwendet hast.
Energieausweistyp
Verbrauchsausweis
Gebäudetyp
Wohngebäude
Baujahr laut Energieausweis
1938
Wesentliche Energieträger
Erdgas schwer
Gültigkeit
26.10.2022 bis 25.10.2032
Effizienzklasse
G
Endenergieverbrauch
235,50 kWh/(m²·a) - Warmwasser enthalten
Weitere Energiedaten
Haustyp
Massivhaus
Heizungsart
Zentralheizung
Details
Objektbeschreibung
Kurzbeschreibung
Hier beginnt Ihr Wohntraum in Radebeul
Objekt
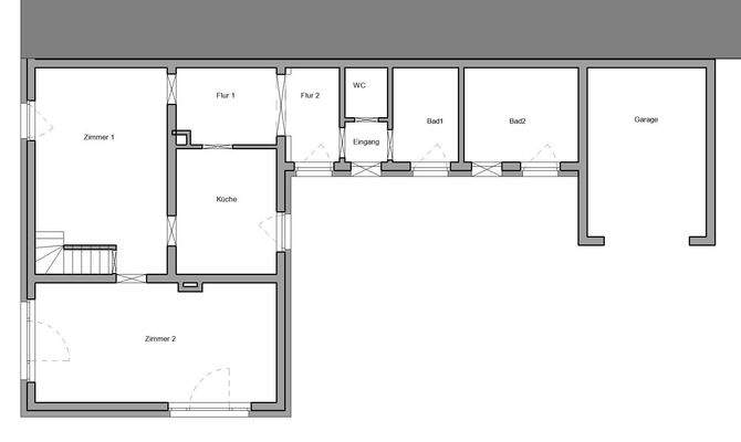
Diese charmante Doppelhaushälfte aus dem Jahr ca. 1938 befindet sich in einer ruhigen Sackgasse im beliebten Radebeuler Ortsteil Wahnsdorf. Mit einer Wohnfläche von rund 134?m² bietet sie großzügigen Raum für Familien und vielfältige Möglichkeiten zur...
Ausstattung
Individuelle Ausstattungsmerkmale:
- Küche mit Fenster
. ruhige Lage in einer Sackgasse von Radebeul-Wahnsdorf
. zusätzlicher Eingang direkt in den Keller
. erneuerte Heizungsanlage
. gedämmtes und gedecktes Dach
. zwei Bäder, separates WC
. eigener Garten mit Schuppen
. Garage und...
Weitere Informationen
Sonstiges
Wir bitten um Verständnis, dass wir nur vollständige Anfragen (E-Mail, Fax, Brief) mit Namen, Anschrift und Telefonnummer beantworten können.
Haftungsausschluss: Alle Angaben haben wir vom Eigentümer erhalten. Für deren Richtigkeit können wir keine Gewähr übernehmen. Einen Zwischenverkauf oder eine...
Anbieter der Immobilie

Online-ID: 2m2zm5f
Referenznummer: 59-0210-8703
Finde Angebote wie dieses
Hier geht es zu unserem Impressum, den Allgemeinen Geschäftsbedingungen, den Hinweisen zum Datenschutz und nutzungsbasierter Online-Werbung.