
corealis Commercial Real Estate GmbH
004 ···
Nr. anzeigenPreise & Kosten
Provision für Mieter
provisionsfrei
Warum sehe ich diese Anzeige? – Du siehst diese Anzeige basierend auf Ihrer Navigation auf unserer Website und den Suchkriterien, die du verwendet hast.
Lage
Die Liegenschaft befindet sich in bester Innenstadtlage direkt an der Königsallee, einer der bekanntesten Geschäfts- und Einkaufsstraßen Europas. Der Standort bietet eine herausragende Erreichbarkeit: Straßenbahn- und U-Bahnhaltestellen liegen in fußläufiger Nähe, der Hauptbahnhof ist nur wenige Minuten entfernt, und die...
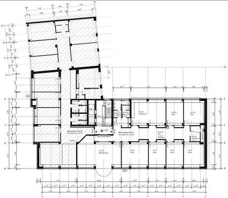
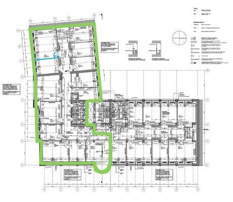
Büro-/Praxisfläche
Kategorie
Bürofläche
Bezug
01.10.2026
Geschoss
5. Geschoss
Details
Objektbeschreibung
Das Bürogebäude in der Königsallee 63-65 präsentiert sich als repräsentative Geschäftsadresse im Premiumsegment. Die Immobilie bietet moderne, helle Büroflächen mit flexiblen Grundrissstrukturen, die sich individuell an unterschiedliche Nutzungsanforderungen anpassen lassen - vom klassischen Einzelbüro bis zu offenen Team-...
Ausstattung
Die Büroflächen- und Gebäudeausstattung entspricht den üblichen und modernen Austattungsstandards.
Weitere Informationen
Stichworte
Gesamtfläche: 348,00 m², Bundesland: Nordrhein-Westfalen
Anbieter der Immobilie
Online-ID: 2m34g5e
Referenznummer: 5677
Finde Angebote wie dieses
Hier geht es zu unserem Impressum, den Allgemeinen Geschäftsbedingungen, den Hinweisen zum Datenschutz und nutzungsbasierter Online-Werbung.