
Müller Merkle Immobilien GmbH
Herr Ramin Brodt
Kontaktiere den Anbieter schriftlich, es ist keine Telefonnummer hinterlegt.
Preise & Kosten
Kaution
4638
Warum sehe ich diese Anzeige? – Du siehst diese Anzeige basierend auf Ihrer Navigation auf unserer Website und den Suchkriterien, die du verwendet hast.
Lage
Lichtenberg - "Ort der Vielfalt"
Ob Platten- oder Gründerzeitbau, Wohnanlage im Bauhausstil oder Neubaudomizil, Häuschen mit Garten oder Villa am See - hier ist alles zu finden. Entsprechend bunt und authentisch ist auch die Bevölkerungsstruktur. Und Lichtenbergs Beliebtheit wächst und wächst, auch aufgrund der Nähe...
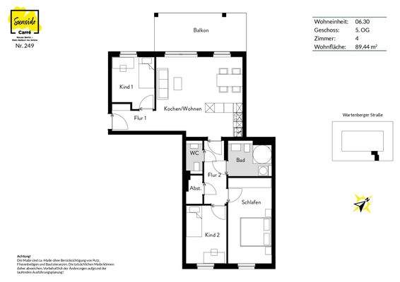
Die Wohnung
Wohnungslage
5. Geschoss
Bezug
sofort
Wohnanlage
Energie & Heizung
Warum sehe ich diese Anzeige? – Du siehst diese Anzeige basierend auf Ihrer Navigation auf unserer Website und den Suchkriterien, die du verwendet hast.
Energieausweistyp
Bedarfsausweis
Gebäudetyp
Wohngebäude
Baujahr laut Energieausweis
2019
Wesentliche Energieträger
Fernwärme
Gültigkeit
22.03.2020 bis 21.03.2030
Effizienzklasse
A
Endenergiebedarf
46,00 kWh/(m²·a)
Weitere Energiedaten
Energieträger
Fernwärme
Heizungsart
Fußbodenheizung
Details
Objektbeschreibung
Nordwestlich vom Dorfkern, zwischen Gartenstadt und Gartenkolonie gelegen, steht das SUNSIDE CARRÉ für eine neue Form des Wohnens vor Ort!
Die hier angebotene 4-Zimmer-Wohnung bietet Platz für die ganze Familie. Der kombinierte Wohn- und Essbereich ist mit einer offenen Einbauküche ausgestattet und bietet Zugang zu dem...
Ausstattung
- Einbauküche mit Markengeräten
- Fußbodenheizung in der ganzen Wohnung
- Balkon, je nach Ausrichtung teilverglast, in den Etagenwohnungen
- grünumfasste Terrassen in den Erdgeschosswohnungen
- bodentiefe, mehrfach verglaste Fenster und Fenstertüren
- innenliegende Plissees in den Schlafzimmern, in den...
Preisinformation
1 Stellplatz, Miete: 80,00 EUR
Weitere Informationen
Sonstiges
ANFRAGEN BITTE ÜBER DAS KONTAKTFORMULAR.
Wir weisen daraufhin, dass bei Abschluss eines Mietvertrages eine 24-monatige Mindestmietdauer und eine Indexmiete vereinbart werden.
BITTE BEACHTEN!
Wir respektieren den Wunsch der Mieter auf Privatsphäre. Bei den Bildern handelt es sich daher um Bilder...
Anbieter der Immobilie
Müller Merkle Immobilien GmbH
Galileistraße 1, 69115 Heidelberg
Herr Ramin Brodt
Dein Ansprechpartner
Kontaktiere den Anbieter schriftlich, es ist keine Telefonnummer hinterlegt.
Online-ID: 2m34m5v
Referenznummer: 570425761#EpnLD
Finde Angebote wie dieses
Hier geht es zu unserem Impressum, den Allgemeinen Geschäftsbedingungen, den Hinweisen zum Datenschutz und nutzungsbasierter Online-Werbung.