

Volkmer Immobilien GmbH & Co. KG
Herr Michael Volkmer
038 ···
Nr. anzeigenPreise & Kosten
Provision für Käufer
3,25% inkl. MwSt inkl. MwSt.
Lage
Willkommen in der idyllischen Wohngegend Siemershöhe im Stadtteil Hamburg-Langenhorn! Diese charmante Nachbarschaft vereint die Vorzüge urbanen Lebens mit einer teilweisen ruhigen, naturnahen Umgebung und ist somit der ideale Ort für Familien, Paare und Singles, die ein harmonisches Zuhause suchen.
Siemershöhe zeichnet...
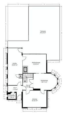
Das Haus
Baujahr
1924
Energie & Heizung
Warum sehe ich diese Anzeige? – Du siehst diese Anzeige basierend auf Ihrer Navigation auf unserer Website und den Suchkriterien, die du verwendet hast.
Energieausweistyp
Verbrauchsausweis
Gebäudetyp
Wohngebäude
Baujahr laut Energieausweis
1924
Gültigkeit
08.07.2024 bis 01.07.2034
Effizienzklasse
F
Endenergieverbrauch
196,60 kWh/(m²·a)
Weitere Energiedaten
Heizungsart
Zentralheizung
Details
Ausstattung
Willkommen in diesem beeindruckenden Einfamilienhaus, das im Jahr 1924 erbaut wurde und durch seinen zeitlosen Charme und seine stilvolle Architektur besticht. Dieses großzügige Wohnhaus bietet Ihnen auf einer Wohnfläche von ca. 310 m² eine harmonische Kombination aus historischem Flair und modernem Wohnkomfort.
Das...
Anbieter der Immobilie

Online-ID: 2m37x5m
Referenznummer: MV 5933
Finde Angebote wie dieses
Hier geht es zu unserem Impressum, den Allgemeinen Geschäftsbedingungen, den Hinweisen zum Datenschutz und nutzungsbasierter Online-Werbung.